Specifications
- Area: 2,030 sq. ft.
- Bedrooms: 3
- Bathrooms: 2
- Stories: 1
- Garages: 2-3
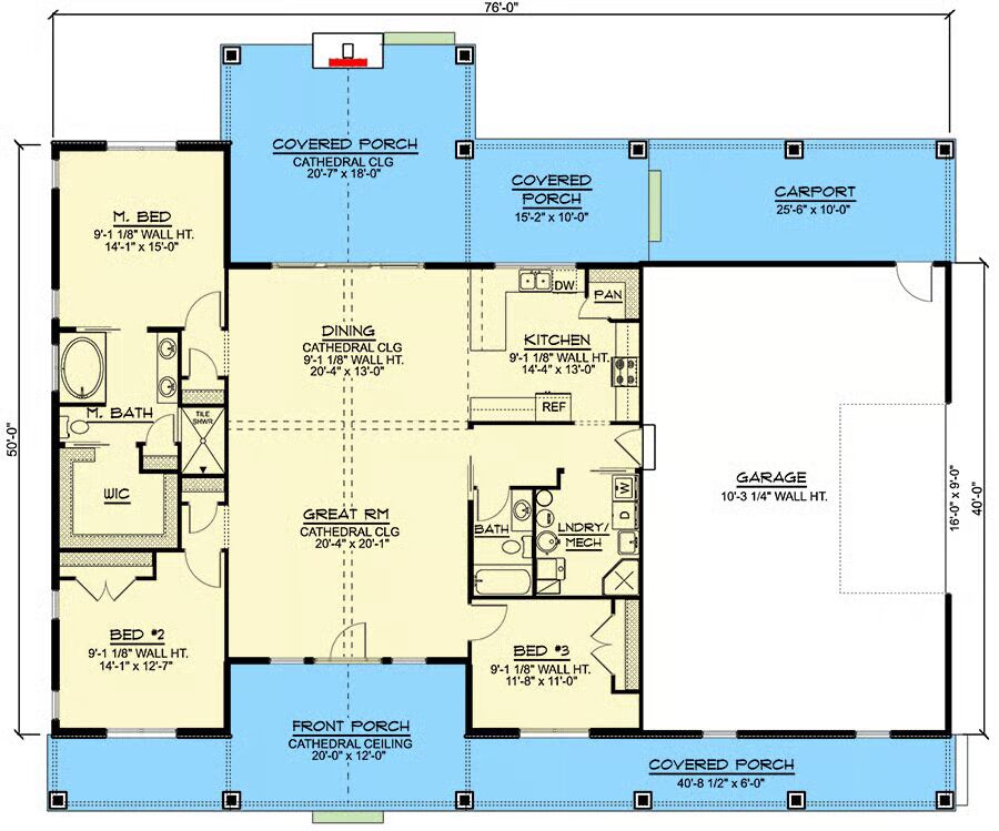
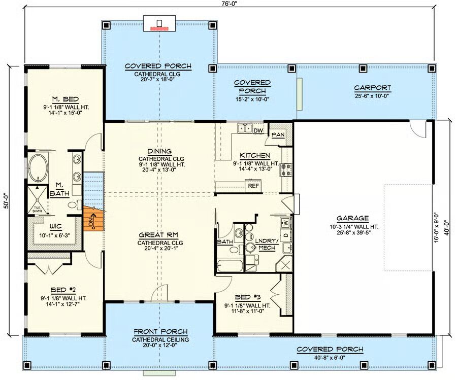
Welcome to the gallery of photos for the One-Story Craftsman Barndo-Style House with RV-Friendly Garage. The floor plans are shown below:








Embrace rustic charm and modern function with this one-story country Craftsman barndo-style home, designed for indoor-outdoor living.
A welcoming 6-foot-deep front porch (12 feet at the entry) stretches across the entire front, while the back offers a dramatic 18-foot vaulted covered porch—an outdoor living room in itself. A secondary porch and carport add even more fresh-air space for relaxing or entertaining.
Inside, a vaulted ceiling runs front to back, enhancing the open-concept design that seamlessly connects the kitchen, vaulted dining area, and great room. The kitchen features a corner pantry, casual counter seating, and a side entry for easy grocery drop-off.
The master suite is filled with natural light from windows on three sides and includes a large walk-in closet (accessed by pocket door) and a spa-like five-piece bath. Two additional bedrooms are positioned at the front corners, each with linear closets.
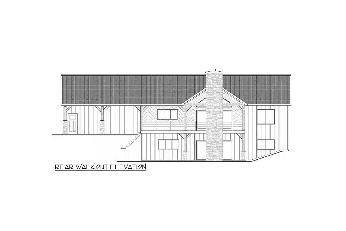
For convenience, a laundry room connects directly to the RV-friendly garage, complete with a 16′ x 9′ overhead door. Built with 2×6 exterior walls and corrugated metal siding, this home combines durability, style, and comfort.
=> Looking for a custom Barndominium floor plan? Click here to fill out our form, a member of our team will be in touch.
