3-Bedroom Modern Barndominium House with Wrap-Around Porch (Floor Plan)

0 Shares

Specifications

  • Area: 1,992 sq. ft.
  • Bedrooms: 3
  • Bathrooms: 2.5
  • Stories: 2
  • Garages: 2

Welcome to the gallery of photos for the Modern Barndominium House with Wrap-Around Porch. The floor plans are shown below:

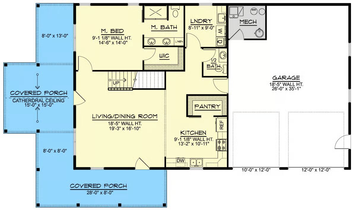
Main level floor plan
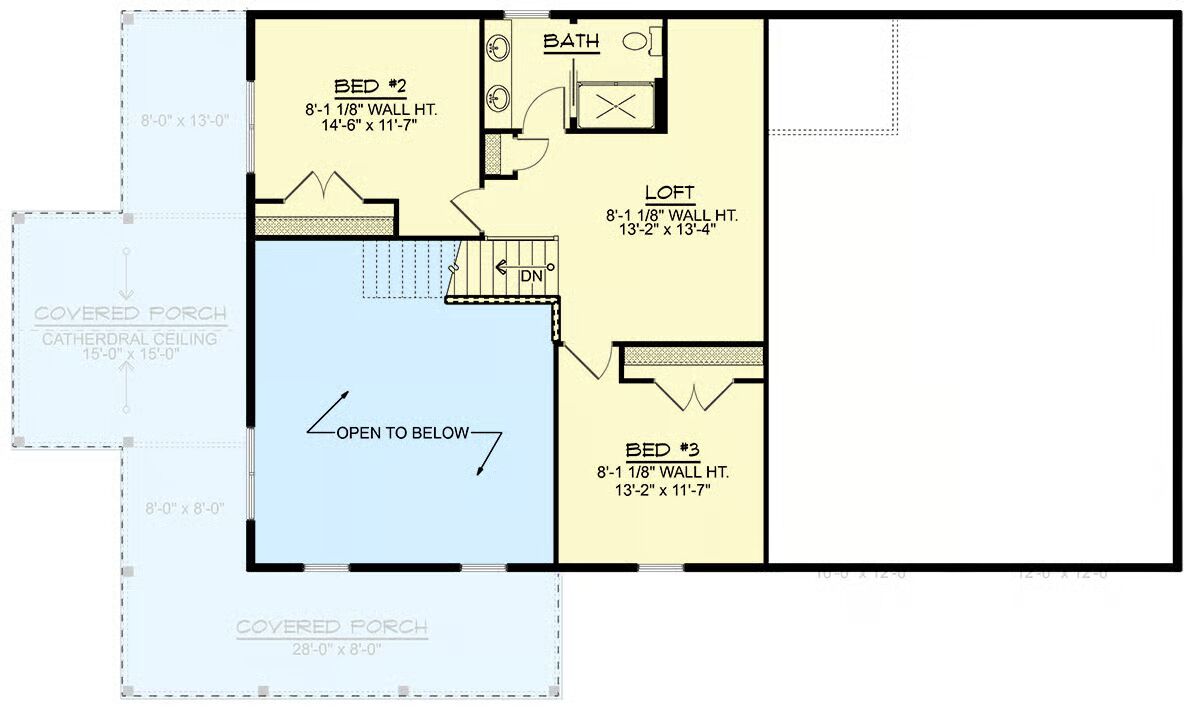
Second level floor plan

Buy This Plan

This modern two-story barndominium features a sleek black facade and a welcoming timber-framed covered porch.
The side view highlights the expansive, dark vertical siding and the generous size of the wooden-post covered porch.
The front of the barndominium shows a dual-bay garage, a red entry door, and a spacious covered area.
A clean, unadorned rear view emphasizes the tall, utilitarian structure and large acreage.
The dining area features a large, black pedestal table, black woven chairs, and copper pendant lighting.
A close-up of the kitchen shows the striking contrast between the wood countertop, green cabinetry, and a large black barn-style refrigerator door.
The elegant kitchen is defined by deep green cabinets, stainless steel appliances, and a beautiful white brick backsplash.
Brass fixtures and a gold-tone faucet beautifully complement the green cabinets and warm wood countertop around the kitchen sink.
This open-concept main floor connects the dining and seating areas under an exposed dark wood beam.
A grand, light-filled great room boasts a soaring two-story ceiling and a striking wagon-wheel chandelier.
A cozy sitting nook is furnished with two mid-century style leather chairs and a large, dramatic black-and-white framed print.
This bedroom features a rich green accent wall, a cane chandelier, and a brown leather headboard between two bright windows.
The master bathroom boasts a double vanity with crisp white cabinetry, two round mirrors, and vessel sinks against a dark green wall.
A luxurious bedroom offers a dark accent wall, gold-toned sconces, and a large white-upholstered bed.
A modern, open-tread wood staircase provides a stunning architectural focal point next to the dining space.
The bedroom is accessorized with a black sliding barn door, a large caned floor lamp, and simple, modern nightstands.
This wide-view bathroom shot highlights the white floor-to-ceiling storage and framed abstract art on the wall.
This bright, serene bedroom features a window overlooking a grassy field, flanked by a pair of tall black doors.

Buy This Plan

Experience modern country living in this stunning 1,992 sq. ft. barndominium-style home, offering 3 bedrooms, 2 full baths, 1 half bath, and an attached 954 sq. ft. 2-car garage.

Step inside to a dramatic two-story great room, where soaring ceilings and abundant natural light create an open, inviting atmosphere ideal for relaxation and entertaining.

The seamless flow between the living and dining areas leads to a contemporary kitchen equipped with a walk-in pantry—perfect for home chefs and hosting with ease.

The main-level master suite provides a peaceful private retreat, while the second floor features two additional bedrooms and a flexible loft space suited for a playroom, office, or cozy lounge.

Wrap-around covered porches offer multiple outdoor living zones, ideal for enjoying quiet mornings, evening gatherings, or meals al fresco. This modern barndominium blends style, comfort, and functionality in one beautifully designed package.

=> Looking for a custom Barndominium floor plan? Click here to fill out our form, a member of our team will be in touch.

💸 80% of Barndo Budgets Blow Up in Planning
Get the $7 tool that helps you avoid delays, overbidding & costly mistakes.
Grab the $7 Planner
0 Shares
See also  3-Bedroom Single-Story Barndominium House with Wrap-Around Porch - 2436 Sq Ft (Floor Plan)

Lisa Young

Lisa Young, writer and construction pro, crafts custom homes. Captivated by barndominiums for four years, she shares insights and advice in engaging articles, empowering readers to create unique living spaces mirroring their aspirations. Join her exciting journey exploring barndominium living.

Recent Posts