Specifications
- Area: 3,884 sq. ft.
- Bedrooms: 3
- Bathrooms: 3
- Stories: 2
- Garages: 6
Welcome to the gallery of photos for the Elevated Barndominium House with 6-Car Carport. The floor plans are shown below:


















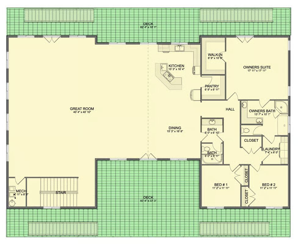
This impressive 3,884 sq. ft. barndominium residence delivers a bold blend of modern design and rustic appeal, offering 3 bedrooms, 3 full bathrooms, and an extraordinary 2,377 sq. ft. attached 6-car carport for unmatched vehicle storage and covered access.
The home is thoughtfully designed with the main living areas elevated on the second floor, creating a dramatic arrival and maximizing views.
A staircase from the ground level leads to an expansive living experience above, while a porte cochere adds a grand, sheltered entry for vehicles and guests alike.
At the heart of the home, a massive open-concept Great Room spans over 40 feet in both directions, seamlessly blending the living, dining, and kitchen areas for effortless entertaining.
The kitchen is enhanced by a breakfast nook and a walk-in butler’s pantry, offering exceptional storage and organization for daily living and gatherings.
The upstairs owner’s suite serves as a private retreat, featuring generous proportions and a well-appointed en-suite bath.
Two additional split bedrooms, each with convenient access to a full bathroom, provide comfortable and private accommodations for family or guests.
Practical features include a dedicated mudroom and a spacious second-floor laundry room, ensuring daily convenience.
Outdoor living is elevated with an impressive 1,833 sq. ft. of deck space wrapping along two sides of the home, perfect for relaxing, entertaining, and enjoying expansive views from multiple vantage points.
=> Looking for a custom Barndominium floor plan? Click here to fill out our form, a member of our team will be in touch.
