Specifications
- Area: 2,311 sq. ft.
- Bedrooms: 3
- Bathrooms: 2.5
- Stories: 2
- Garages: 2
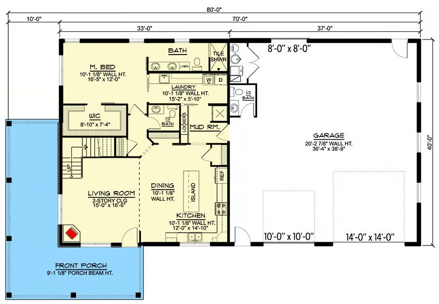
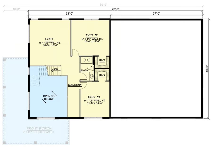
Welcome to the gallery of photos for the Deluxe Barndominium with 2-Story Living Room – 2311 Sq Ft. The floor plans are shown below:




























With board-and-batten siding that echoes the ribbed metal roof, this deluxe barndominium pairs rustic charm with modern design. Built with durable 2×6 conventional wood framing, this home blends countryside character with lasting strength.
The right wing of the home features an impressive 1,480 sq. ft. garage, complete with a 10′ x 10′ overhead door, a 14′ x 14′ RV-friendly overhead door, and an 8′ x 8′ rear sliding door for easy access. A convenient powder bath is also located in the garage area.
A welcoming wraparound porch frames the main living space, where the open-concept great room flows seamlessly into the eat-in kitchen—perfect for entertaining family and friends.
The main-level primary suite offers comfort and privacy with an attached bath featuring a tiled shower and direct access to the laundry room. Upstairs, a generous loft overlooks the living space below and connects to two additional bedrooms that share a full bathroom.
Finished with 24″ vertical board-and-batten cement board siding, this barndominium combines timeless farmhouse aesthetics with modern function, delivering the ideal retreat for today’s country lifestyle.
=> Looking for a custom Barndominium floor plan? Click here to fill out our form, a member of our team will be in touch.
