3-Bedroom Country Craftsman House with Vaulted Great Room and 2-Car Garage – 2030 Sq Ft (Floor Plan)

20 Shares

Specifications

  • Area: 2,030 sq. ft.
  • Bedrooms: 3
  • Bathrooms: 2
  • Stories: 1
  • Garages: 2

Welcome to the gallery of photos for the Country Craftsman House with Vaulted Great Room and 2-Car Garage – 2030 Sq Ft. The floor plans are shown below:

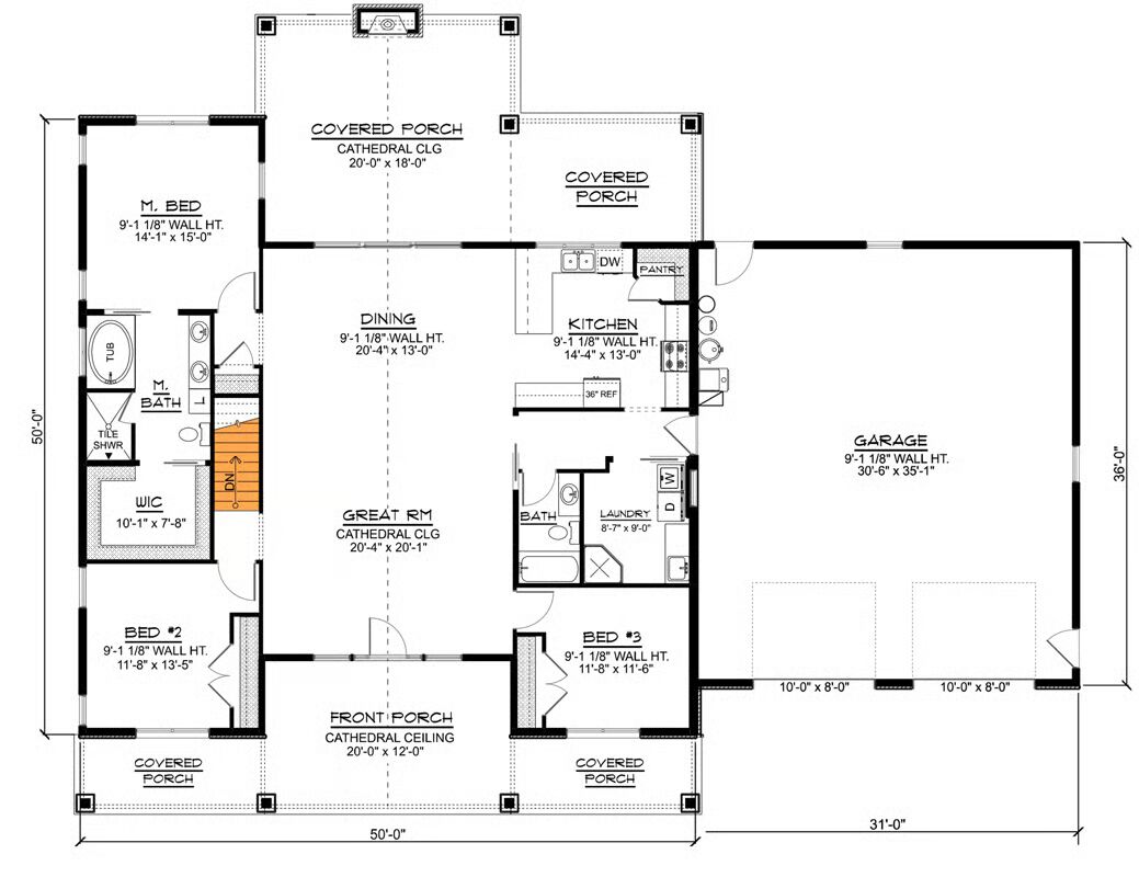
Main floor plan
Main floor plan with basement stairs

Buy This Plan

This barndominium showcases exquisite curb appeal, ideal for any modern homeowner.
Both the front and rear of the house feature spacious porches.
The house features a two-car garage with glass bays.
Welcome home to modern country living with this stunning barndominium design.
Enjoy cozy evenings by the modern fireplace, a focal point of this stylish living space.
Experience the perfect blend of comfort and elegance in this beautifully appointed living area.
The eight-seater dining area blends well with the outdoor living space.
The spotless kitchen sports a monochrome color tone with a wooden accent.
In the dining area, you can enjoy hearty meals and meaningful conversations.
The comfy main bedroom assures you of quality rest and relaxation.
Freshen up before or after your day in the master bathroom.
The inviting master bathroom has a double vanity and an enclosed shower area.
Wash your clothes easily inside the laundry room.
The living room’s contemporary furnishings complement the rustic charm of the exposed beams.
A view of the secondary living space to invite guests over.
The secondary kitchen has modern appliances and a three-seater bar.
Sleep well in one of the house’s majestic bedrooms.

Buy This Plan

This rustic one-story country Craftsman home combines timeless charm with modern livability. A 50′-wide front porch provides an inviting space to relax outdoors, while the back features a spectacular 18′-deep vaulted covered porch, perfect for use as an outdoor living room.

A smaller side porch just off the kitchen adds even more space to enjoy fresh air.

Designed with conventional wood framing and 2×6 exterior walls, the home offers lasting quality. Inside, an open floor plan with a vaulted front-to-back ceiling connects the great room, dining area, and kitchen.

The kitchen includes casual counter seating and a spacious corner pantry, with a convenient side entry for bringing in groceries.

The master suite is filled with natural light from three sides and boasts a large walk-in closet with pocket-door access to a luxurious five-fixture bath. Two additional bedrooms are positioned at the front of the home, each with generous closet space.

Completing the design, an oversized 2-car garage with 10′-wide by 8′-tall overhead doors provides ample room for vehicles and storage. The exterior is finished in durable corrugated metal siding, enhancing the home’s rustic appeal.

Top 5 Mistakes DIY Barndo Builders Make!
Most self-builders lose $10K+ before breaking ground.
Grab the Planner

=> Looking for a custom Barndominium floor plan? Click here to fill out our form, a member of our team will be in touch.

See also  3-Bedroom One-Story Barndominium House with Vaulted Country Kitchen - 1952 Sq Ft (Floor Plan)
💸 80% of Barndo Budgets Blow Up in Planning
Get the $7 tool that helps you avoid delays, overbidding & costly mistakes.
Grab the $7 Planner
20 Shares

Lisa Young

Lisa Young, writer and construction pro, crafts custom homes. Captivated by barndominiums for four years, she shares insights and advice in engaging articles, empowering readers to create unique living spaces mirroring their aspirations. Join her exciting journey exploring barndominium living.

Recent Posts