3-Bedroom Barndominium with Wraparound Porch and 2-Story Living Room – 2765 Sq Ft (Floor Plan)

20 Shares

Specifications

  • Area: 2,765 sq. ft.
  • Bedrooms: 3
  • Bathrooms: 2.5+
  • Stories: 2
  • Garages: 4

Welcome to the gallery of photos for the Barndominium with Wraparound Porch and 2-Story Living Room – 2765 Sq Ft. The floor plans are shown below:

The quintessential modern barndominium, this home features a deep, covered porch and massive three-bay garage set against a stunning mountain backdrop.
Combining style and utility, the dark metal siding and triple garage bays define the rugged elegance of this spacious barndominium design.
This view highlights the immense scale of the structure, featuring a sweeping metal roof and a stone chimney that anchors the farmhouse aesthetic to the mountainside.
An expansive back patio, covered by a deep roof and supported by stone pillars, offers the perfect outdoor living space for entertaining in this beautiful setting.
Rustic stone wainscoting and simple vertical siding add texture and charm to the barndominium’s entrance, providing a welcoming touch.
The formal dining area, complete with a striking woven pendant light, flows seamlessly into the two-story living space and balcony above.
Enjoy the view from the bright living room, where a floor-to-ceiling stone fireplace provides a cozy, contemporary focal point.
A breathtaking two-story vaulted ceiling and open staircase create an airy, grand atmosphere that connects the living area to the entire home.
This stylish kitchen boasts a large granite-topped island, crisp white shaker cabinets, and a contrasting black industrial pendant light for a modern farmhouse feel.
With a view out to the landscape, the kitchen is anchored by a massive island and features a stylish subway tile backsplash with warm under-cabinet lighting.
A serene primary bedroom offers a plush upholstered bed and a picture window that perfectly frames the peaceful exterior view.
Soft, neutral tones and a modern ceiling fan create a peaceful and stylish secondary bedroom with ample natural light.
The master bath features a spacious double vanity with marble-look counters and modern overhead lighting, creating a spa-like feel.
A clean, bright bathroom with a subway tile tub/shower connects directly to the private closet, offering streamlined access to the primary suite.
The walk-through master closet provides abundant storage and convenient access to the laundry area, making organization effortless.
This stunning open-concept living space seamlessly connects a gourmet kitchen to a two-story dining and living area, centered around a dramatic stone fireplace and bathed in natural light.
The bright upstairs loft features a cozy sitting area and built-in bookshelf, offering a private retreat that overlooks the main living space below.
This calming bedroom space is highlighted by a dark-trimmed window and a striking ceiling fan, ensuring comfort and style.

Barndominium living meets modern comfort in this thoughtfully designed home, complete with conventional 2×6 wood framing and a charming wraparound porch that extends the living space outdoors.

At the heart of the home, a two-story great room and dining area create an airy, open atmosphere, while the spacious kitchen makes entertaining effortless. A nearby den offers a quiet retreat for work or relaxation.

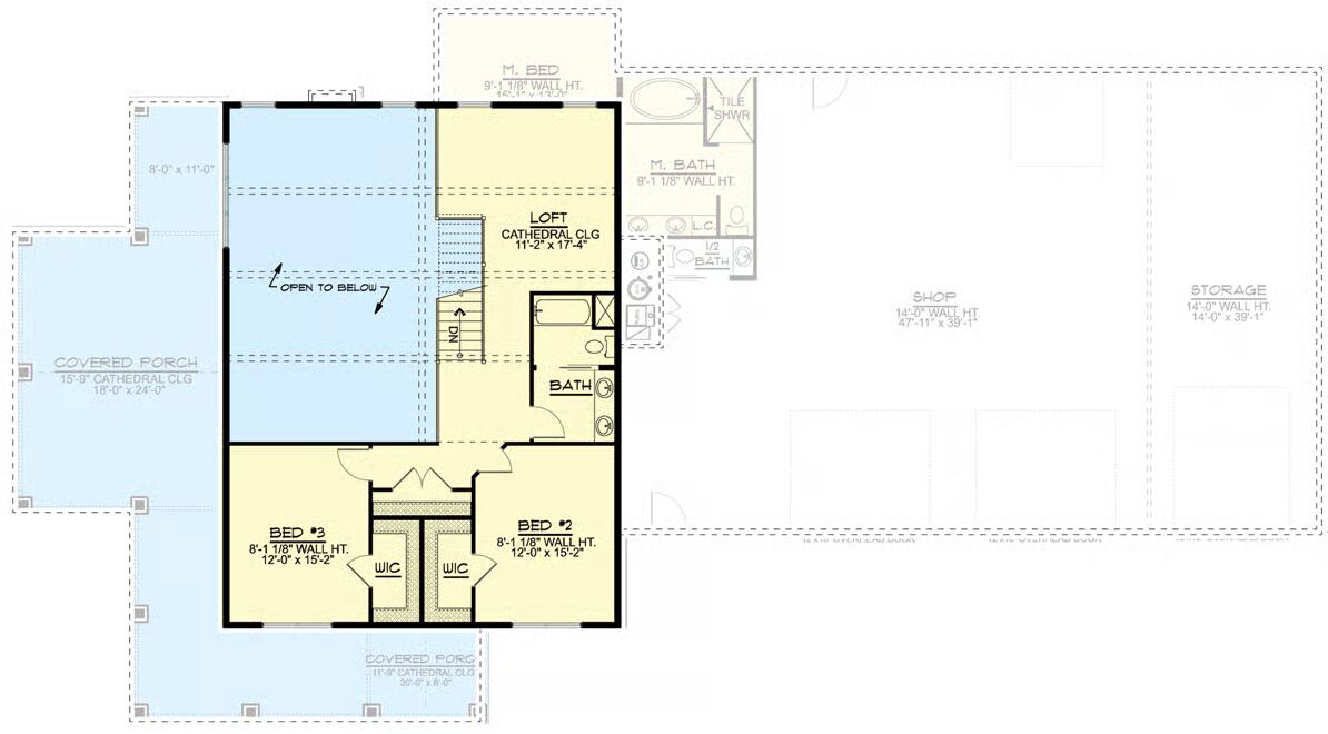
The main-level master suite features a spa-like, 5-fixture bath and a walk-in closet with direct access to the laundry room for everyday convenience. Upstairs, two secondary bedrooms mirror each other and share access to a central loft—an ideal space for kids or guests.

A highlight of the property is the 2,245 sq. ft. garage, offering incredible versatility. With two 12′ x 10′ overhead doors, a 10′ x 12′ bay for larger vehicles, and an additional 8′ x 8′ rear door, it provides ample space for parking, storage, or even a workshop.

=> Looking for a custom Barndominium floor plan? Click here to fill out our form, a member of our team will be in touch.

💸 80% of Barndo Budgets Blow Up in Planning
Get the $7 tool that helps you avoid delays, overbidding & costly mistakes.
Grab the $7 Planner
20 Shares
See also  1-Bedroom Barndominium-style Shouse with Massive Workshop, an Office and Living Quarters (Floor Plan)

Lisa Young

Lisa Young, writer and construction pro, crafts custom homes. Captivated by barndominiums for four years, she shares insights and advice in engaging articles, empowering readers to create unique living spaces mirroring their aspirations. Join her exciting journey exploring barndominium living.

Recent Posts