Specifications
- Area: 2,481 sq. ft.
- Bedrooms: 3
- Bathrooms: 2.5
- Stories: 2
- Garages: 3
Welcome to the gallery of photos for the Barndominium-Style with Three-Car Garage and Home Office. The floor plans are shown below:







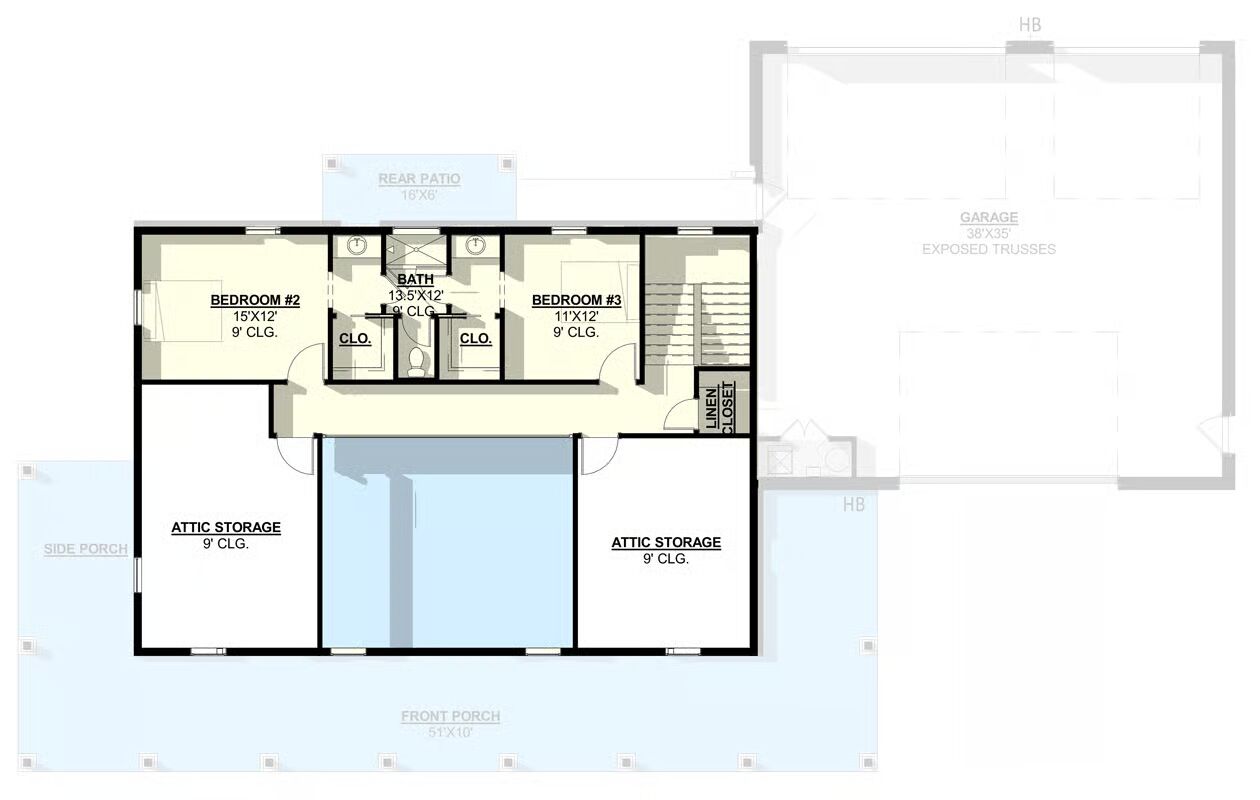
Discover 2,481 sq. ft. of refined Barndominium living, offering 3 bedrooms, 2.5 baths, and an impressive 1,404 sq. ft. three-car garage designed for ample storage and convenience.
A welcoming front porch leads you into a striking two-story great room, setting the tone for the home’s open and airy layout.
The great room flows seamlessly into the stylish kitchen, complete with a butler’s walk-in pantry and a cozy breakfast nook, creating the perfect setting for everyday living and entertaining.
The main level is thoughtfully designed for functionality, featuring a dedicated home office, a mudroom for easy organization, and convenient laundry access located just steps from the living areas.
Escape to the first-floor master suite, offering comfort and privacy with a spa-inspired bath and direct access to the laundry room. Upstairs, two additional bedrooms are connected by a shared Jack & Jill bathroom, providing an ideal layout for family or guests.
Outdoor living is elevated with an expansive covered patio, perfect for evening relaxation, grilling, or gathering with friends. Additional attic storage ensures plenty of room to keep your home organized and clutter-free.
This barndominium blends modern design, practical features, and spacious comfort—perfect for those seeking style and functionality in one beautiful home.
=> Looking for a custom Barndominium floor plan? Click here to fill out our form, a member of our team will be in touch.
