Specifications
- Area: 3,502 sq. ft.
- Bedrooms: 3
- Bathrooms: 2.5+
- Stories: 2
- Garages: 3
Welcome to the gallery of photos for the Barndominium-Style House with Home Office and Oversized Side Entry Garage and Shop. The floor plans are shown below:









This 3-bedroom stick-framed Barndominium-style home (built with 2×6 exterior walls) blends comfortable living with practical workspace. Perfectly suited for a side-sloping lot, the wraparound porch and deck provide the ideal spots to relax and take in your views.
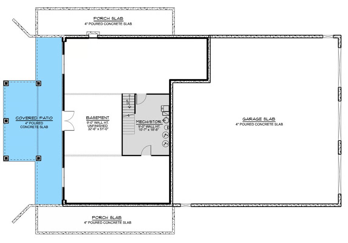
The side-entry garage/shop spans an impressive 2,585 sq. ft. and features three overhead doors, including an oversized 12′ by 14′ center bay for RVs, boats, or larger equipment.
Inside, the open-concept floor plan creates seamless flow between the kitchen, dining area, and living room. A spacious island kitchen, complemented by a generous walk-in pantry, offers both style and function.
Just off the entryway, a quiet den adds versatility, while a private office in the back of the garage makes working from home a breeze.
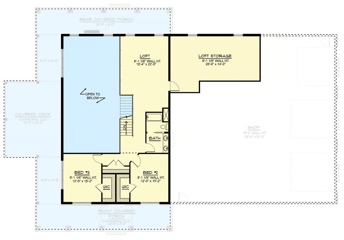
The main-level master suite features a five-fixture bath and walk-in closet for true comfort and convenience. Upstairs, two additional bedrooms—each with a walk-in closet—share a full bath and are connected by a loft overlooking the living room below.
Finished with durable corrugated metal siding, this home offers the perfect blend of modern living, functionality, and rustic charm.
=> Looking for a custom Barndominium floor plan? Click here to fill out our form, a member of our team will be in touch.
