Specifications
- Area: 2,679 sq. ft.
- Bedrooms: 3
- Bathrooms: 2
- Stories: 2
- Garages: 2
Welcome to the gallery of photos for the Barndominium-Style House with Corrugated Metal Siding and a Detached Carport. The floor plans are shown below:


Buy This Plan





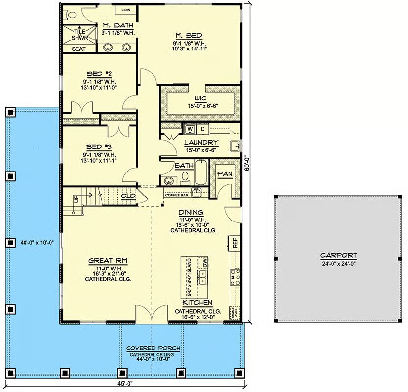
This rustic barndominium-style home combines country charm with modern functionality, offering 2,679 sq. ft. of heated living space, 3 bedrooms, and a detached 2-car carport.
The exterior showcases corrugated metal siding and a wraparound porch, setting the tone for relaxed rural living.
Through elegant French doors, you’re welcomed into an open, vaulted great room that seamlessly connects the kitchen—complete with a 5′ x 8′ island and coffee bar—to the dining area, creating a warm, social atmosphere.
Two spacious bedrooms occupy one side of the home, conveniently located near a full bath and laundry room with garage access. The primary suite is privately positioned at the rear, featuring a 4-fixture bath, linen storage, and a walk-in closet for added comfort and convenience.
Blending rustic textures with thoughtful design, this barndominium plan delivers effortless indoor-outdoor living and timeless appeal.
=> Looking for a custom Barndominium floor plan? Click here to fill out our form, a member of our team will be in touch.
