Specifications
- Area: 4,121 sq. ft.
- Bedrooms: 3
- Bathrooms: 2.5+
- Stories: 2
- Garages: 4
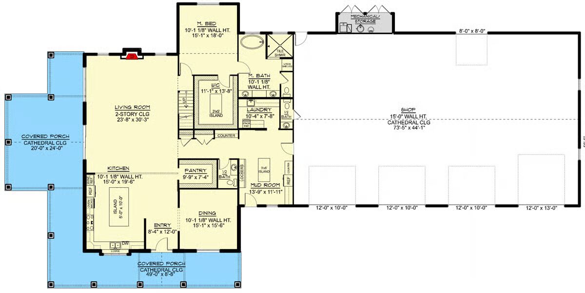
Welcome to the gallery of photos for the Barndominium-Style House Under 4200 Square Feet with Oversized 4-Car Garage. The floor plans are shown below:








This 4,121 sq. ft. Barndominium-style home combines modern farmhouse charm with incredible functionality. Featuring 3 bedrooms, 2.5 bathrooms, and a massive 3,416 sq. ft. 4-car garage, this design is perfect for those seeking both comfort and workspace.
A 1,147 sq. ft. wraparound porch extends the living space outdoors, ideal for relaxing or entertaining.
Inside, the heart of the home boasts a two-story great room with fireplace, seamlessly connected to the chef’s kitchen with a striking 5′ x 10′ island. The main-level master suite is a private retreat, complete with a spa-inspired 5-fixture bath and a walk-in closet with center island.
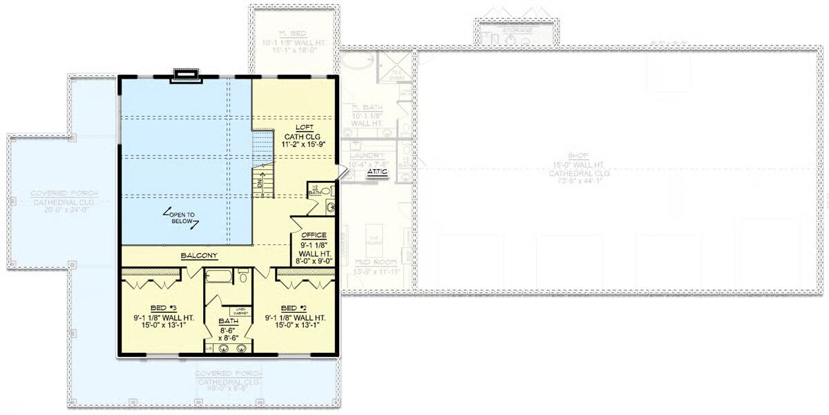
Upstairs, a loft overlooks the great room, creating a dramatic open feel, while two secondary bedrooms share a convenient Jack-and-Jill bath. A pocket office provides the perfect quiet space for remote work or study.
The vaulted garage is designed with versatility in mind, featuring three 10′ x 12′ doors, one oversized 12′ x 13′ door, and an additional 8′ x 8′ rear door for smaller equipment.
Finished in corrugated metal siding, this home combines durability, style, and practicality—ideal for families looking for spacious living with flexible functionality.
=> Looking for a custom Barndominium floor plan? Click here to fill out our form, a member of our team will be in touch.
