3-Bedroom Barndominium-Style Farmhouse with Wrap Around Porch – 2000 Sq Ft (Floor Plan)

0 Shares

Specifications

  • Area: 2,000 sq. ft.
  • Bedrooms: 3
  • Bathrooms: 2.5
  • Stories: 1
  • Garages: 2

Welcome to the gallery of photos for the Barndominium-Style Farmhouse with Wrap Around Porch – 2000 Sq Fte. The floor plans are shown below:

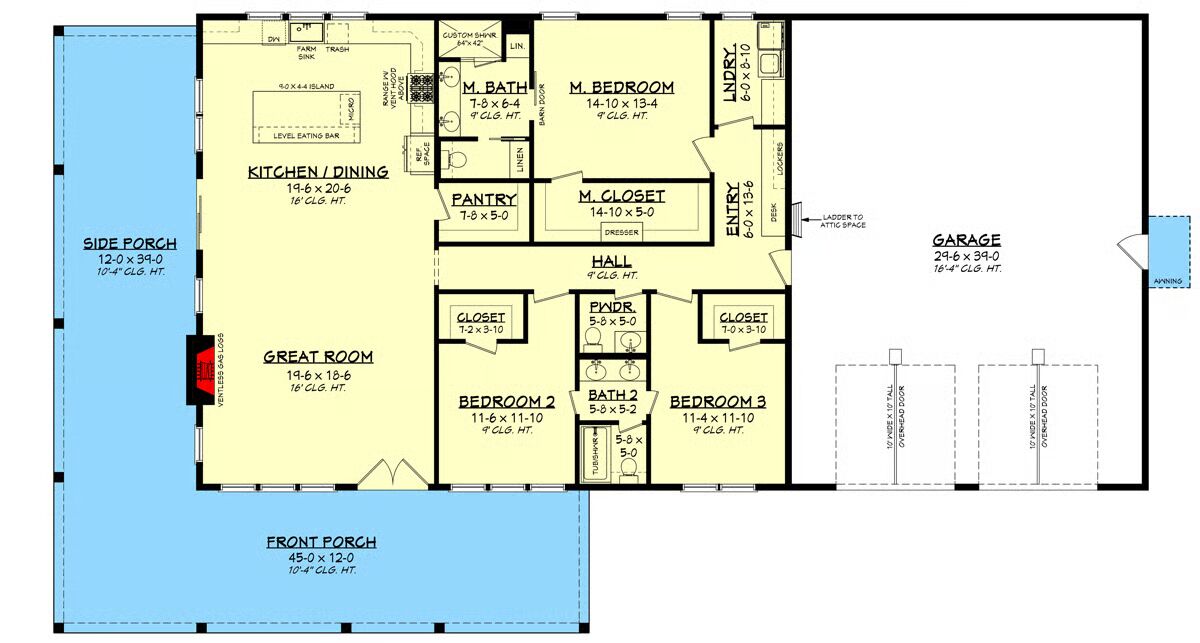
Main floor plan
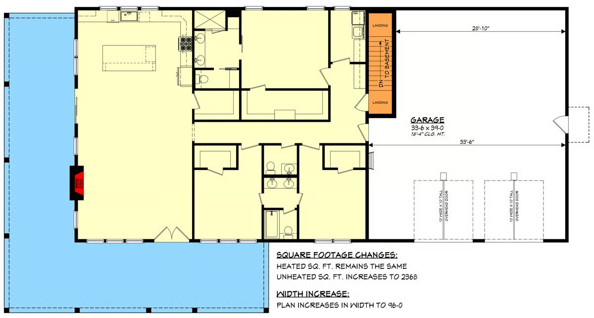
Main floor plan with basement stairs

Buy This Plan

This barndominium boasts a striking presence with its clean lines and classic appeal.
Welcome home to expansive outdoor living with this beautiful wrap-around porch.
The inviting front porch offers ample space for relaxation and entertaining.
Imagine enjoying tranquil mornings on this beautiful and spacious covered porch.
Thoughtful landscaping enhances the curb appeal of this home’s comfortable front porch.
Here, you can see the house’s open concept living space, seamlessly combing the kitchen, bedroom, and family areas.
This inviting living room combines modern style with cozy comfort, ideal for relaxation.
The spacious living space offers a bright and airy atmosphere with vaulted ceilings.
Cook and enjoy a hearty meal in this modern kitchen.
Large windows flood the living room with natural light and scenic views.
This serene bedroom offers a peaceful retreat with abundant natural light.
The utility room helps out in organizing the home’s laundry.
Enjoy comfortable living in this well-appointed bedroom with a modern aesthetic.
Pamper yourself with this elegant walk-in closet.

Buy This Plan

This barndominium-style home combines modern efficiency with rustic charm, highlighted by a spacious 10’4”-deep wraparound porch spanning two sides of the property.

A massive 1,200 sq. ft. garage with two 10’ x 10’ overhead doors provides ample space for vehicles, storage, or workshop use.

Built with conventional wood framing and 2×6 exterior walls, this home is as durable as it is stylish.

Top 5 Mistakes DIY Barndo Builders Make!
Most self-builders lose $10K+ before breaking ground.
Grab the Planner

Inside, the open-concept design showcases a great room with fireplace, dining area, and a chef’s kitchen featuring a 9’ x 4’ island and walk-in pantry, all set beneath soaring 16’ ceilings with large windows that flood the space with natural light.

The floor plan includes three well-placed bedrooms with convenient access to a centrally located laundry room. Above the living space, accessible by ladder from the garage, is a versatile storage loft.

=> Looking for a custom Barndominium floor plan? Click here to fill out our form, a member of our team will be in touch.

πŸ’Έ 80% of Barndo Budgets Blow Up in Planning
Get the $7 tool that helps you avoid delays, overbidding & costly mistakes.
Grab the $7 Planner
0 Shares
See also  2-Bedroom Farmhouse-Inspired Barndo-Style House with Loft and RV-Friendly Garage (Floor Plan)

Lisa Young

Lisa Young, writer and construction pro, crafts custom homes. Captivated by barndominiums for four years, she shares insights and advice in engaging articles, empowering readers to create unique living spaces mirroring their aspirations. Join her exciting journey exploring barndominium living.

Recent Posts