Specifications
- Area: 1,311 sq. ft.
- Bedrooms: 3
- Bathrooms: 2
- Stories: 1
- Garages: 2
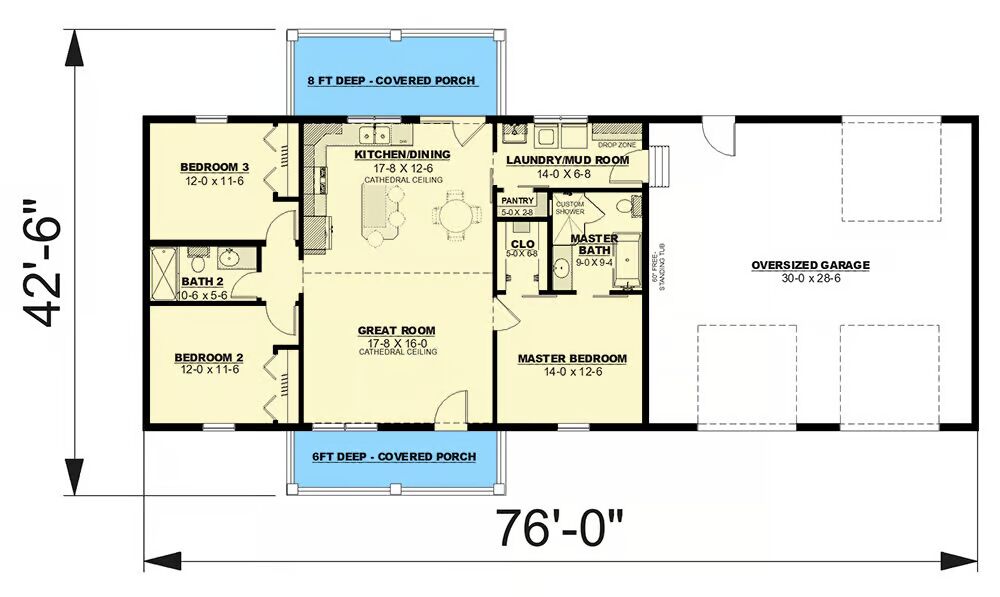
Welcome to the gallery of photos for the Barndominium House with Oversized Garage – 1311 Sq Ft. The floor plan is shown below:













This thoughtfully designed barndominium-style home offers 1,311 sq. ft. of heated living space, featuring 3 bedrooms and 2 baths with modern comfort and farmhouse charm.
Built with conventional wood framing and 2×6 exterior walls, it combines durability with inviting design.
Step inside to a cathedral-ceiling great room that flows into the island kitchen, complete with casual seating, abundant storage, and a walk-in pantry conveniently connected to the laundry room.
A spacious mudroom/laundry area with sink, cabinetry, and drop zone provides everyday functionality right off the garage entry.
The split-bedroom layout ensures privacy, with the master suite offering a walk-in closet, oversized custom shower, and free-standing soaking tub. Two secondary bedrooms share a full bath, ideal for family or guests.
Outdoor living is equally inviting with a 6-foot covered front porch (120 sq. ft.) and an 8-foot covered rear porch (160 sq. ft.), perfect for relaxing and entertaining year-round.
=> Looking for a custom Barndominium floor plan? Click here to fill out our form, a member of our team will be in touch.
