3-Bedroom Barndominium House with 2-Story Great Room – 3436 Sq Ft (Floor Plan)

17 Shares

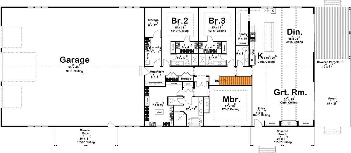
Specifications

  • Area: 3,436 sq. ft.
  • Bedrooms: 3
  • Bathrooms: 3.5
  • Stories: 1
  • Garages: 3

Welcome to the gallery of photos for the Barndominium House with 2-Story Great Room – 3436 Sq Ft. The floor plans are shown below:

Buy This Plan

This striking Barndominium-style home features a dark metal facade and a long, low profile overlooking a peaceful pond and grassy meadow.
Industrial-chic glass garage doors seamlessly blend function and style on the front facade of the dark, vertical-paneled Barndominium.
A sunny patio extends from the Barndominium, creating an idyllic outdoor living space for dining and enjoying the fire pit.
The dramatic end-gable of the Barndominium showcases soaring, modern triangular windows that flood the living space with light.
This side view emphasizes the home’s impressive, elongated Barndominium structure and its generous metal roofline against the landscape.
The open-plan dining area features a stylish sputnik chandelier and expansive glass doors leading directly to the backyard patio.
An inviting dining setup sits opposite a large kitchen island, perfectly lit by a contemporary multi-bulb light fixture.
The great room features a vaulted, exposed-beam ceiling and a central fireplace, serving as the perfect gathering hub with views of the outdoors.
A peek into the separate butler’s pantry reveals smart, dark cabinetry and ample hidden storage space.
A closer look reveals the kitchen’s stunning black marble backsplash and countertops, complemented by light wood cabinets.
A closer look reveals the kitchen’s stunning black marble backsplash and countertops, complemented by light wood cabinets.
This luxurious bedroom boasts a ribbon fireplace below a mounted TV, with large windows overlooking the scenic property.
The main bathroom makes a bold statement with dual vessel sinks, custom organic-shaped mirrors, and a rich black marble backsplash.
This serene bathroom offers a deep, modern soaking tub situated perfectly beneath a large window with a view.
A spacious walk-in closet is organized with open shelving, hanging rails, and a central dresser, all set against a dark plaid backdrop.
The main bedroom is a restful retreat, featuring a plaid accent wall, a tray ceiling, and dual bedside tables.

Buy This Plan

This 3-bedroom, 3.5-bath barndominium-style home perfectly blends rustic charm with modern comfort. Step into the open-concept living area featuring a cathedral ceiling with decorative trusses, creating an airy and inviting space for family and gatherings.

The master suite offers a private retreat with a tray ceiling, cozy fireplace, and a spacious walk-in closet complete with an island and built-in dresser for ample storage.

Extend your living outdoors on the covered pergola patio, ideal for relaxing evenings or entertaining guests in style.

=> Looking for a custom Barndominium floor plan? Click here to fill out our form, a member of our team will be in touch.

💸 80% of Barndo Budgets Blow Up in Planning
Get the $7 tool that helps you avoid delays, overbidding & costly mistakes.
Grab the $7 Planner
17 Shares
See also  3-Bedroom Barndominium-style House with Two-story Great Room (Floor Plans)

Lisa Young

Lisa Young, writer and construction pro, crafts custom homes. Captivated by barndominiums for four years, she shares insights and advice in engaging articles, empowering readers to create unique living spaces mirroring their aspirations. Join her exciting journey exploring barndominium living.

Recent Posts