Welcome to the gallery of photos for the Barndominium House with 2-Story Great Room – 1820 Sq Ft. The floor plans are shown below:
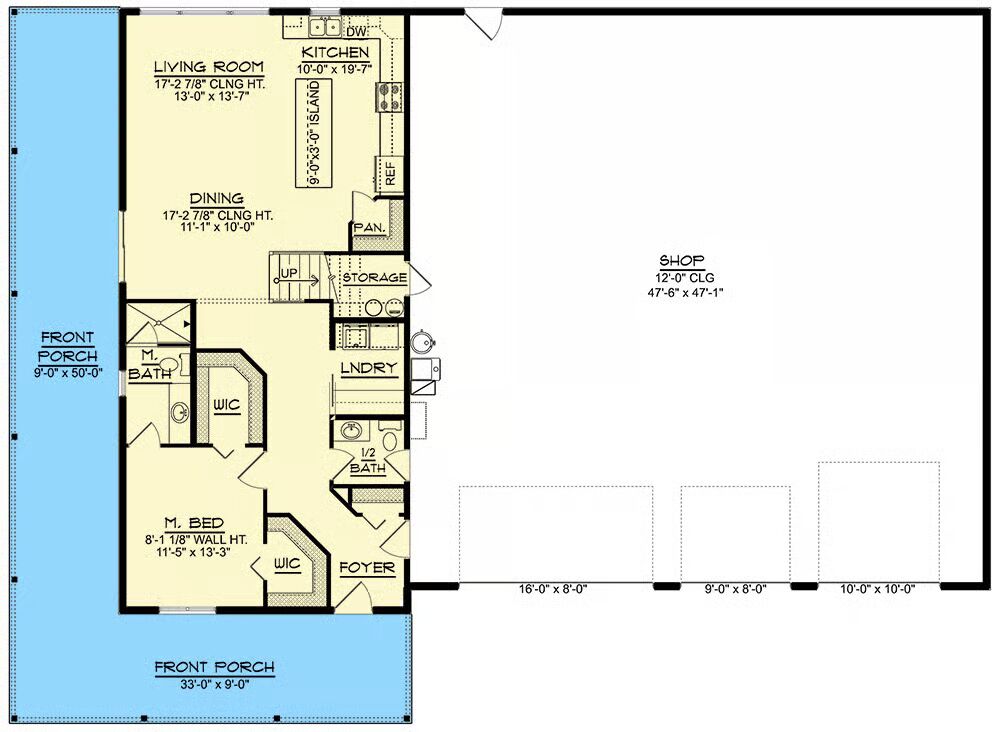
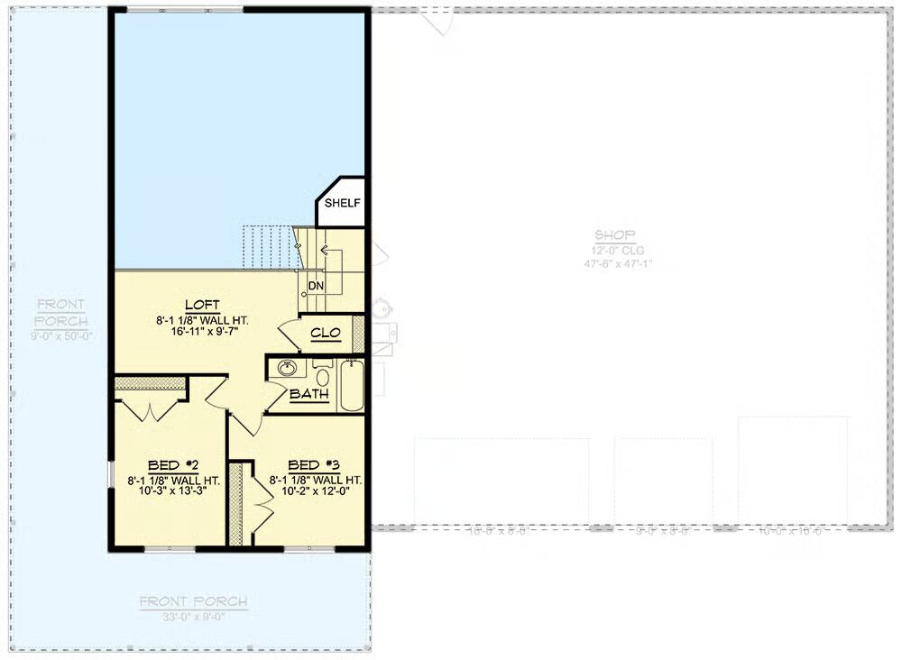
Main level floor planSecond level floor plan
Buy This PlanDiscover the stunning barndominium-style home, boasting a spacious garage and inviting covered porch.Experience the wrap-around porch and serene back view of this modern barndominium.Admire the sleek lines and expansive back porch, perfect for entertaining in this stylish barndominium.This barndominium showcases its impressive scale and thoughtful design from every angle.A unique barndominium profile highlights the seamless integration of living and garage spaces.Step into a chef’s dream kitchen, featuring warm wood cabinetry, gleaming countertops, and a chic island.The open-concept living area welcomes you with soaring ceilings, natural light, and contemporary design.This elegant living space seamlessly connects with an upstairs loft, offering both comfort and sophistication.A stylish media wall anchors the living room, blending modern convenience with refined aesthetics.Enjoy the harmonious flow between the kitchen and living room, bathed in light from expansive windows.The cozy upstairs loft provides a perfect retreat with its inviting seating area.Relax in this serene bedroom, featuring a textured accent wall and a classic, clean palette.This stylish bathroom combines classic wainscoting and modern fixtures for a perfect blend of old and new.A plush, bright bed is the centerpiece of this tranquil bedroom, framed by striking black doors.The sleek glass shower door adds a contemporary touch to this clean and bright bathroom.Make laundry a breeze in this chic space, complete with ample counter space and a modern design.
This Barndominium-style home offers 1,820 square feet of heated living space, featuring 3 bedrooms and 2.5 bathrooms designed with comfort and functionality in mind.
A spacious 2,334-square-foot 4-car garage provides ample room for vehicles, storage, or workshop space—perfect for car enthusiasts or those needing extra utility.
=> Looking for a custom Barndominium floor plan? Click here to fill out our form, a member of our team will be in touch.
💸 80% of Barndo Budgets Blow Up in Planning
Get the $7 tool that helps you avoid delays, overbidding & costly mistakes.
Lisa Young, writer and construction pro, crafts custom homes. Captivated by barndominiums for four years, she shares insights and advice in engaging articles, empowering readers to create unique living spaces mirroring their aspirations. Join her exciting journey exploring barndominium living.
Specifications
Area: 2,486 sq. ft.
Bedrooms: 3
Bathrooms: 2
Stories: 2
Welcome to the gallery of photos for the Expansive Modern Farmhouse House with Split Bedrooms and Vaulted Great...
Specifications
Area: 2,558 sq. ft.
Bedrooms: 4
Bathrooms: 2.5
Stories: 2
Garages: 1-3
Welcome to the gallery of photos for the Barndominium-Style Modern Farmhouse with Massive...