3-Bedroom Barndominium Carriage House with Oversized 3-Car Garage – 1499 Sq Ft (Floor Plan)

0 Shares

Specifications

  • Area: 1,499 sq. ft.
  • Bedrooms: 3
  • Bathrooms: 2
  • Stories: 2
  • Garages: 3

Welcome to the gallery of photos for the Barndominium Carriage House with Oversized 3-Car Garage – 1499 Sq Ft. The floor plans are shown below:

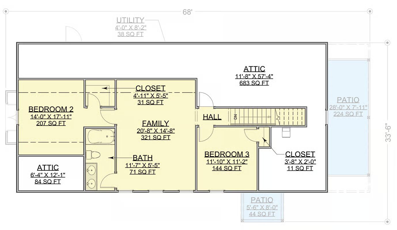
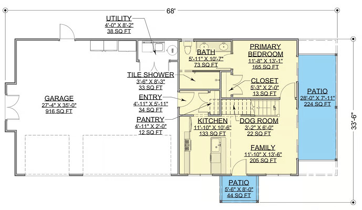
Main level floor plan
Second level floor plan

Buy This Plan

The striking Barndominium stands out with its white siding, black trim, and dual covered porches, ready to welcome you home.
This Barndominium showcases a modern farmhouse look with a prominent dormer, a three-car garage, and a charming covered entry.
Admire the classic gable roof and modern porch design of this Barndominium, creating a perfect blend of rustic and contemporary.
The long, clean lines of the Barndominium’s side elevation are enhanced by a dark, inviting covered patio space.
A clean white facade and simple front entrance with a stylish awning define the modern elegance of this Barndominium.
From above, appreciate the full scope of this sleek Barndominium, complete with a dark roof and a spacious driveway surrounded by nature.
Picture yourself relaxing on this covered patio, where stylish ceiling fans provide a cool breeze and frame the beautiful wooded view.
The bright, contemporary kitchen features white shaker cabinets, a large granite island, and a professional-grade stainless steel range.
This open-concept living area combines a comfortable sectional with a bright kitchen, all framed by large windows overlooking the outdoors.
Relax in this cozy living room, which is anchored by a media console, two plush chairs, and a large natural fiber rug over warm wood floors.
The primary bedroom offers a peaceful retreat with a vaulted ceiling, a simple wood bed frame, and large window letting in natural light.
A serene guest bedroom is furnished with a light wood bed and nightstand, complemented by a soft, textured rug and a modern ceiling fan.
Step out onto a private patio from this bedroom, which features a ceiling fan, a comfortable bed, and natural textures for a calm feel.
The spacious bathroom boasts a double vanity with granite counters and a large mirror, offering plenty of room and style for morning routines.

Buy This Plan

This charming carriage house–style barndominium blends simplicity and elegance to create the perfect starter home.

Designed with comfort and practicality in mind, it features a spacious upstairs family room and a large sliding door in the main living area, filling the home with natural light and easy outdoor access.

The main level hosts the primary suite with a full ensuite bath, an inviting family room, and a modern kitchen complete with a peninsula island—perfect for casual dining and entertaining.

A mudroom entry conveniently connects to the expansive 968 sq. ft. 3-car garage and workshop, ideal for storage or hobby space.

Upstairs, you’ll find two additional bedrooms, a shared full bath with dual vanities, and a cozy family lounge—a perfect retreat for relaxation or recreation.

Combining barndominium charm with modern functionality, this home offers comfort, efficiency, and style—an excellent choice for those seeking a warm, inviting home with room to grow.

=> Looking for a custom Barndominium floor plan? Click here to fill out our form, a member of our team will be in touch.

đź’¸ 80% of Barndo Budgets Blow Up in Planning
Get the $7 tool that helps you avoid delays, overbidding & costly mistakes.
Grab the $7 Planner
0 Shares
See also  3-Bedroom Alluring Barndominium House with 2-Story Great Room - 3115 Sq Ft (Floor Plan)

Lisa Young

Lisa Young, writer and construction pro, crafts custom homes. Captivated by barndominiums for four years, she shares insights and advice in engaging articles, empowering readers to create unique living spaces mirroring their aspirations. Join her exciting journey exploring barndominium living.

Recent Posts