Specifications
- Area: 2,992 sq. ft.
- Bedrooms: 4
- Bathrooms: 3.5
- Stories: 2
- Garages: 0
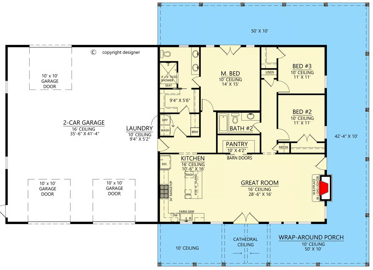
Welcome to the gallery of photos for the Barndo-Style Modern Farmhouse with Oversized Workshop Garage – 1702 Sq Ft. The floor plan is shown below:














This barndominium-style modern farmhouse offers 1,702 sq. ft. of living space with 3 bedrooms and 2 bathrooms, paired with a massive 1,524 sq. ft. workshop garage for all your storage, hobby, or vehicle needs.
Inside, the open-concept layout features a vaulted great room that flows effortlessly into the kitchen and dining areas.
The kitchen is designed for both function and style with a central island, walk-in pantry, and sliding barn doors, making it the perfect gathering spot for family and friends.
The private master suite includes a spacious bathroom and walk-in closet, while two secondary bedrooms share a convenient full bath.
Outdoor living is equally inviting with a generous wraparound porch, ideal for morning coffee, relaxing evenings, or entertaining in the fresh air.
=> Looking for a custom Barndominium floor plan? Click here to fill out our form, a member of our team will be in touch.
