Specifications
- Area: 2,084 sq. ft.
- Bedrooms: 3
- Bathrooms: 2.5
- Stories: 2
- Garages: 3
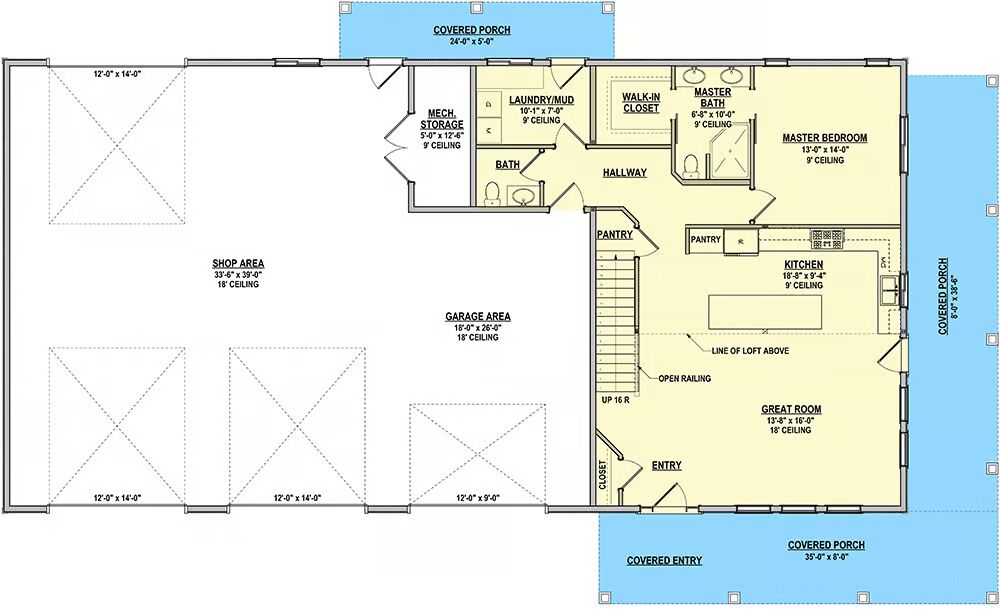
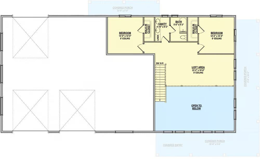
Welcome to the gallery of photos for the Barndo-Style Home with Expanded Workshop Garage – 2084 Sq Ft. The floor plans are shown below:









This one-and-a-half-story Barndominium-style home perfectly blends rustic appeal with modern versatility, offering 2,084 square feet of heated living space, 3 bedrooms, and 2.5 bathrooms.
Thoughtfully designed with conventional 2×6 wood framing, this home delivers both strength and style.
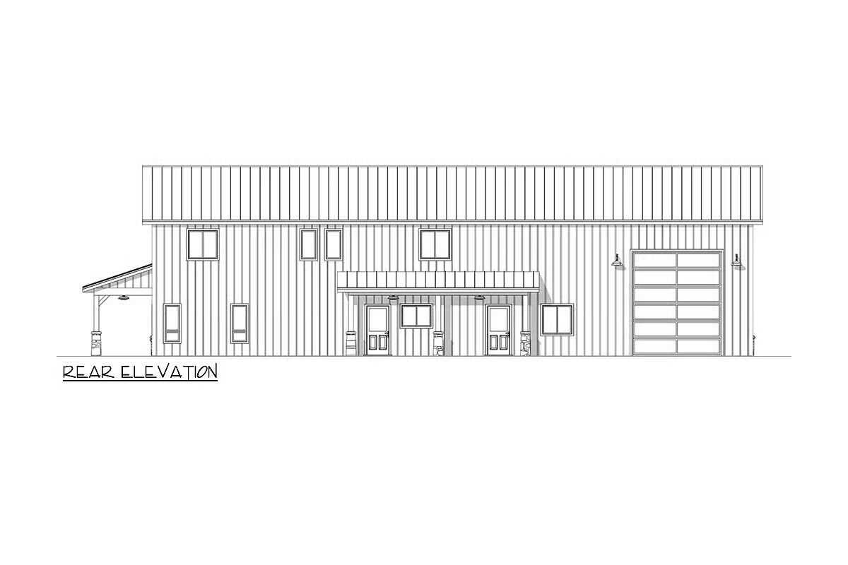
A true highlight is the expanded, oversized 3-bay workshop garage, featuring an impressive 1,937 square feet of space. Ideal for RV storage, a mechanic’s lift, or hobby use, the garage includes two 12′ x 14′ bay doors, soaring 18-foot ceilings, and a 39-foot-deep area.
The leftmost bay offers convenient drive-thru access with a matching 12′ x 14′ rear door, while the single-car bay features a 12′ x 9′ overhead door—providing exceptional functionality and flexibility.
The home’s inviting exterior showcases board and batten siding, stone façade skirting, and a durable metal roof, all tied together by a wraparound front porch that exudes timeless farmhouse charm.
Perfect for those seeking a blend of comfort, craftsmanship, and utility, this Barndominium-style home offers a stunning and practical retreat for modern country living.
=> Looking for a custom Barndominium floor plan? Click here to fill out our form, a member of our team will be in touch.
