Specifications
- Area: 1,878 sq. ft.
- Bedrooms: 3
- Bathrooms: 2.5
- Stories: 1
- Garages: 3
Welcome to the gallery of photos for the Barndo-Style Farmhouse House Under 2000 Square Feet. The floor plans are shown below:










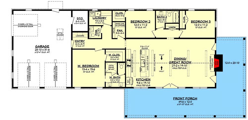
Blending farmhouse charm with barndominium style, this home offers 3 bedrooms, 2.5 baths, and an oversized 3-car garage.
Designed with conventional wood framing and 2×6 exterior walls, it showcases today’s most popular features, including a vaulted open-concept living area, spacious kitchen with walk-in pantry, a split-bedroom layout, and an inviting wraparound porch.
A 12′-deep porch spans the front and side of the home, while the 791 sq. ft. garage includes two front-facing 9′ x 10′ overhead doors plus a convenient side-entry bay.
Inside, the vaulted great room with fireplace flows seamlessly into the dining area and kitchen, highlighted by a large 11’4″ x 3’6″ island and walk-in pantry.
Two secondary bedrooms share a full bath behind the great room, while the private master suite sits on the opposite side of the home.
The suite features a walk-in closet and spa-inspired bath with a double vanity, walk-in shower, and private water closet. A powder bath and laundry room are located just across the hall for everyday convenience.
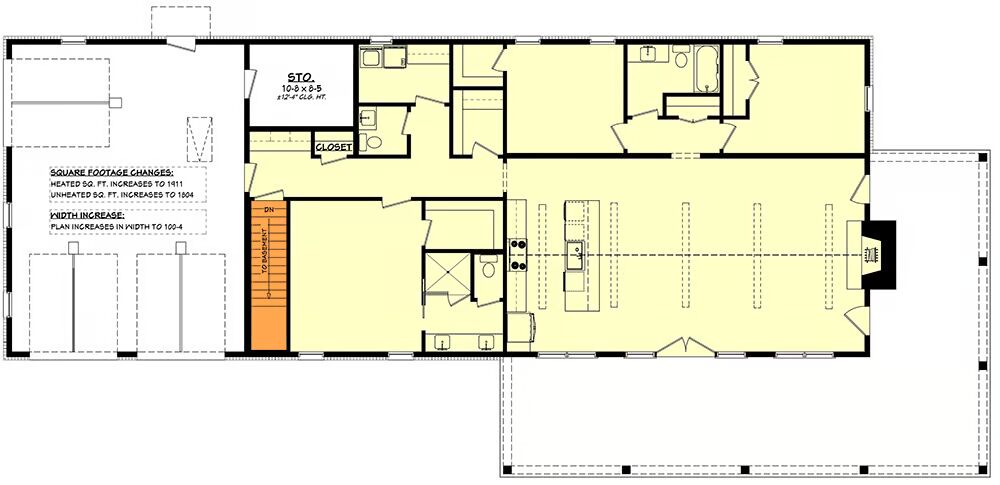
The garage entry doubles as a mudroom with built-in lockers, while a nearby half bath keeps messes contained. An additional storage/workshop room offers flexible space for projects, tools, or organization.
=> Looking for a custom Barndominium floor plan? Click here to fill out our form, a member of our team will be in touch.
