Specifications
- Area: 3,115 sq. ft.
- Bedrooms: 3
- Bathrooms: 2.5-3.5
- Stories: 2
- Garages: 3
Welcome to the gallery of photos for the Alluring Barndominium House with 2-Story Great Room – 3115 Sq Ft. The floor plans are shown below:



Buy This Plan






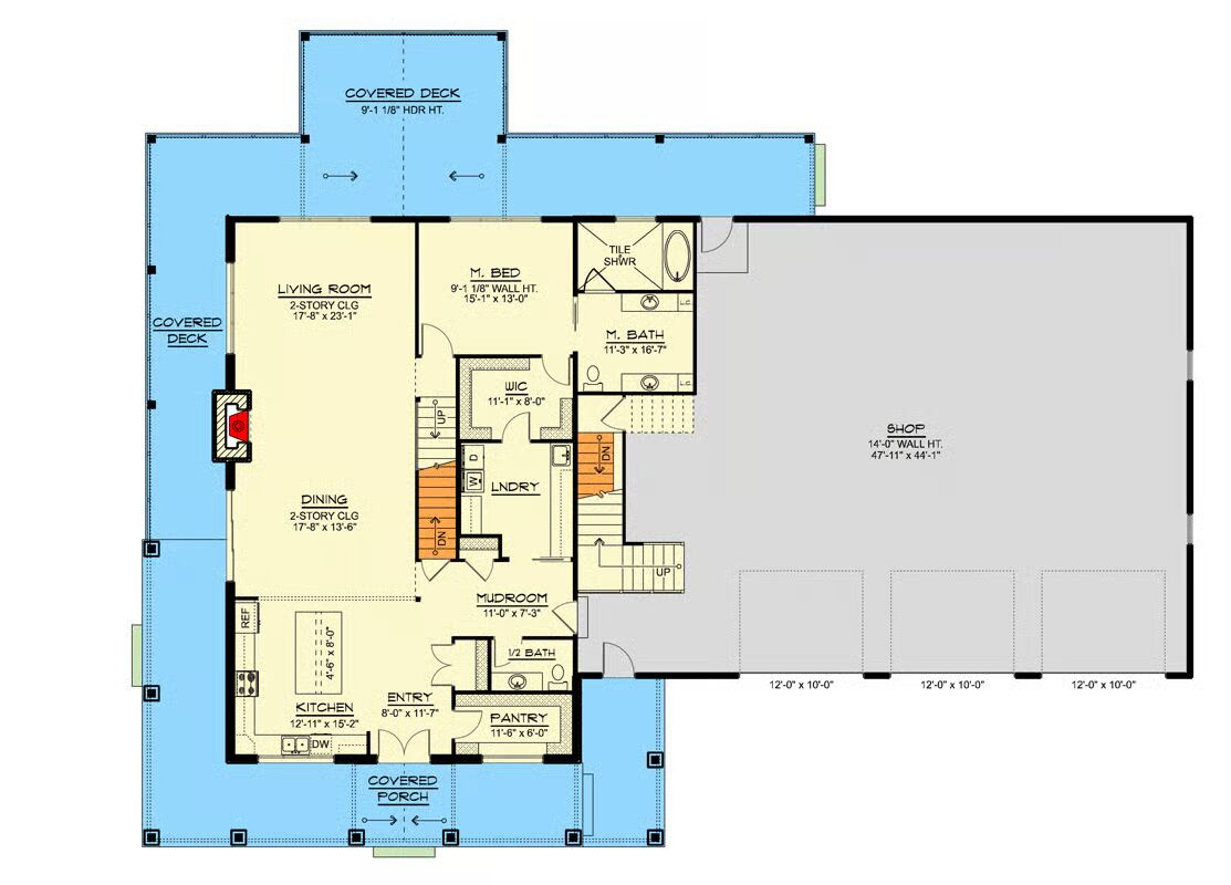
This 3,115-square-foot barndominium-style home combines rustic charm with modern convenience, offering 2 to 3 bedrooms, 2.5 bathrooms, and a spacious 2,499-square-foot 3-car garage.
A welcoming wraparound porch enhances curb appeal while providing the perfect space to relax and enjoy the outdoors.
Designed with durable 2×6 exterior wood framing, the home opens with a kitchen to the left, seamlessly flowing into the dining area and great room—ideal for gatherings and everyday living.
The main-level master suite features a private bath and a generous walk-in closet with direct access to the laundry room for everyday convenience. At the rear, a covered wraparound porch extends the living space outdoors, perfect for entertaining or quiet evenings.
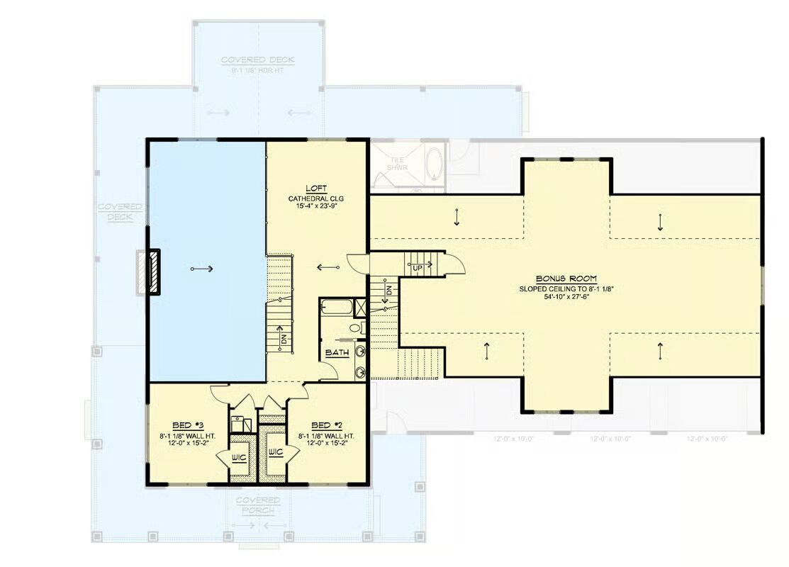
Upstairs, a versatile loft overlooks the living areas below and sits between two additional bedrooms, each with walk-in closets, offering comfort and ample storage.
With its thoughtful design, expansive garage, and inviting indoor-outdoor living, this barndominium is a perfect blend of style, function, and country-inspired charm.
=> Looking for a custom Barndominium floor plan? Click here to fill out our form, a member of our team will be in touch.
