Specifications
- Area: 4,117 sq. ft.
- Bedrooms: 3-4
- Bathrooms: 3
- Stories: 2
- Garages: 4
Welcome to the gallery of photos for the 2-Story Barndominium with Wraparound Porch. The floor plans are shown below:


Buy This Plan




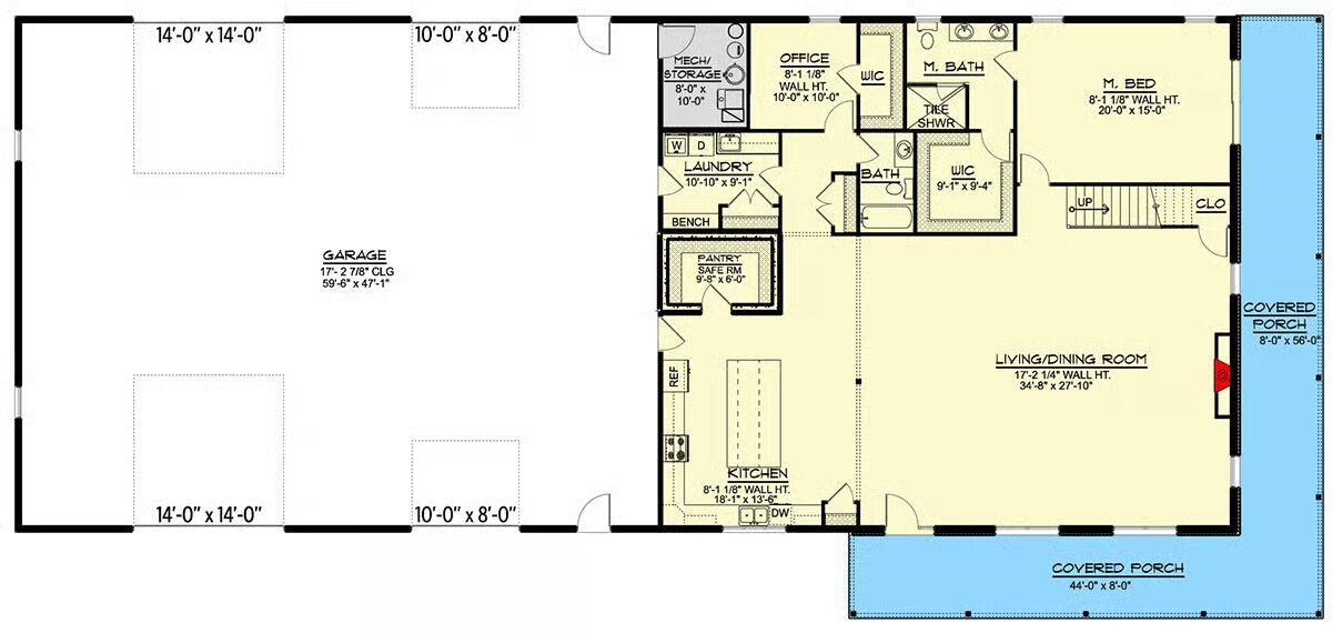
This stunning 2-story Barndominium-style home blends rustic charm with modern design, featuring vertical siding and a striking gabled metal roof.
On the left side, a massive 2,880 sq. ft. garage with front and rear overhead doors offers exceptional storage and workspace, enhanced by an impressive 17-foot ceiling height.
An 8-foot-deep wraparound porch welcomes you outdoors and provides convenient access from both the main living area and the master suite.
Inside, the heart of the home showcases a two-story great room, seamlessly flowing into the island kitchen and dining area. A spacious walk-in pantry doubles as a secure safe room.
The main level also includes a dedicated home office, a private master suite, and a laundry room for added convenience.
Upstairs, a loft overlooks the living room and connects to two secondary bedrooms and a full bathroom with a double vanity.
The exterior is finished with durable corrugated metal siding, combining low-maintenance living with timeless barn-inspired appeal.
=> Looking for a custom Barndominium floor plan? Click here to fill out our form, a member of our team will be in touch.
