Specifications
- Area: 2,500 sq. ft.
- Bedrooms: 2
- Bathrooms: 2.5
- Stories: 2
- Garages: 5
Welcome to the gallery of photos for the Spacious Barndominium House with Deck. The floor plans are shown below:







Buy This Plan
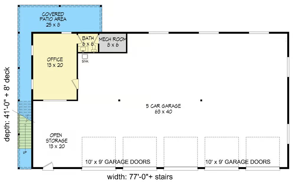
Designed with the car enthusiast in mind, this impressive carriage house plan boasts a 5-car garage on the main level, complete with an office, half bath, and abundant storage. A wraparound covered patio extends from the office, offering a shaded spot to relax outdoors.
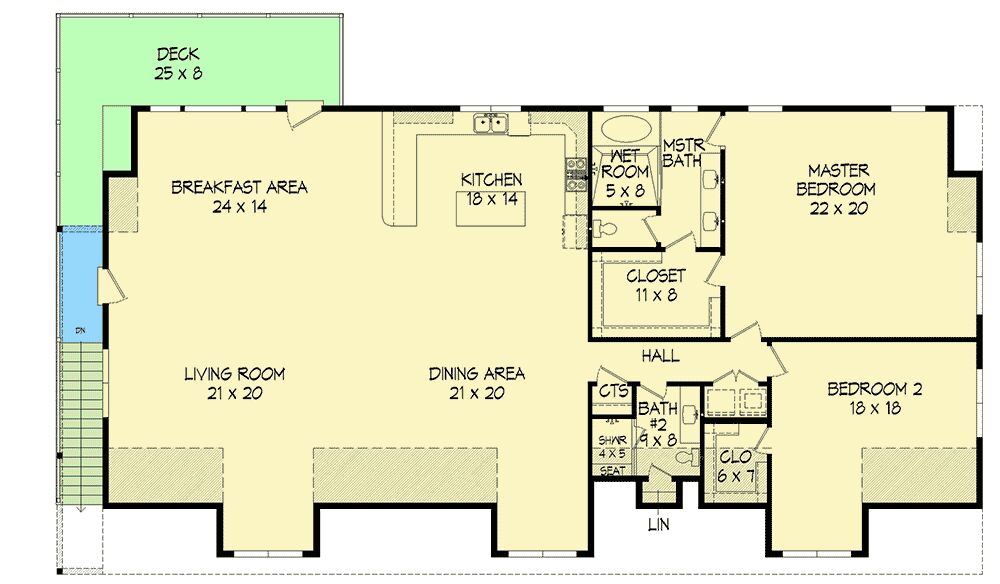
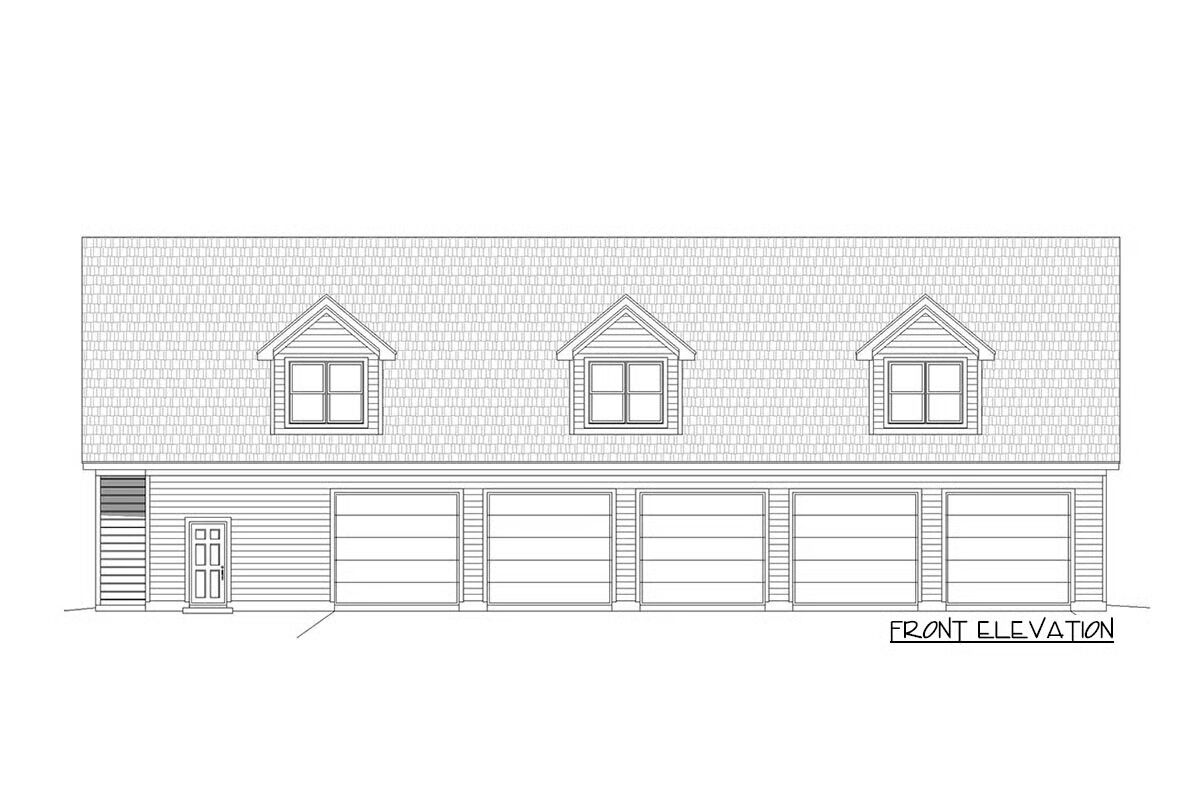
Three dormers brighten the upper level, where an open-concept design combines the living room, kitchen, and dining area. The space seamlessly extends to a private deck, perfect for entertaining or enjoying the view.
The chef-inspired kitchen features a U-shaped counter layout, a central prep island, and counter-height seating for casual dining.
The master suite provides a true retreat with a spa-style en suite showcasing a wet room and a walk-in closet. A second bedroom, full bath, and conveniently placed laundry closet complete the upper level.
=> Looking for a custom Barndominium floor plan? Click here to fill out our form, a member of our team will be in touch.
