Specifications
- Area: 1,230 sq. ft.
- Bedrooms: 2
- Bathrooms: 2
- Stories: 1
- Garages: 4-8
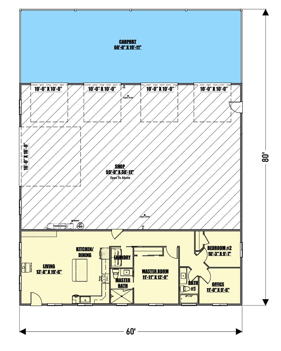
Welcome to the gallery of photos for the RV-Friendly Barndo-style House with Carport and Home Office – 1230 Sq Ft. The floor plans are shown below:



















This versatile barndominium-style home—also known as a “shouse” (shop + house)—combines expansive garage space with comfortable living.
Built with conventional 2×6 framing, it features four garage bays, each with its own 10′ x 10′ overhead door, plus a 16′ x 16′ side-entry door with clearance for an RV or boat.
A massive 60′-wide carport spans the full width of the home, ensuring every vehicle and toy has a place.
Inside, the floor plan offers two bedrooms grouped together, a dedicated home office, and an open-concept living, kitchen, and dining area.
The kitchen is anchored by a center island with casual seating, while a wood stove adds warmth and character to the spacious living area.
=> Looking for a custom Barndominium floor plan? Click here to fill out our form, a member of our team will be in touch.
