Specifications
- Area: 1,491 sq. ft.
- Bedrooms: 2
- Bathrooms: 2
- Stories: 1
- Garages: 3
Welcome to the gallery of photos for the Mountain Craftsman House Plan with Expansive 3-Car Garage. The floor plans are shown below:












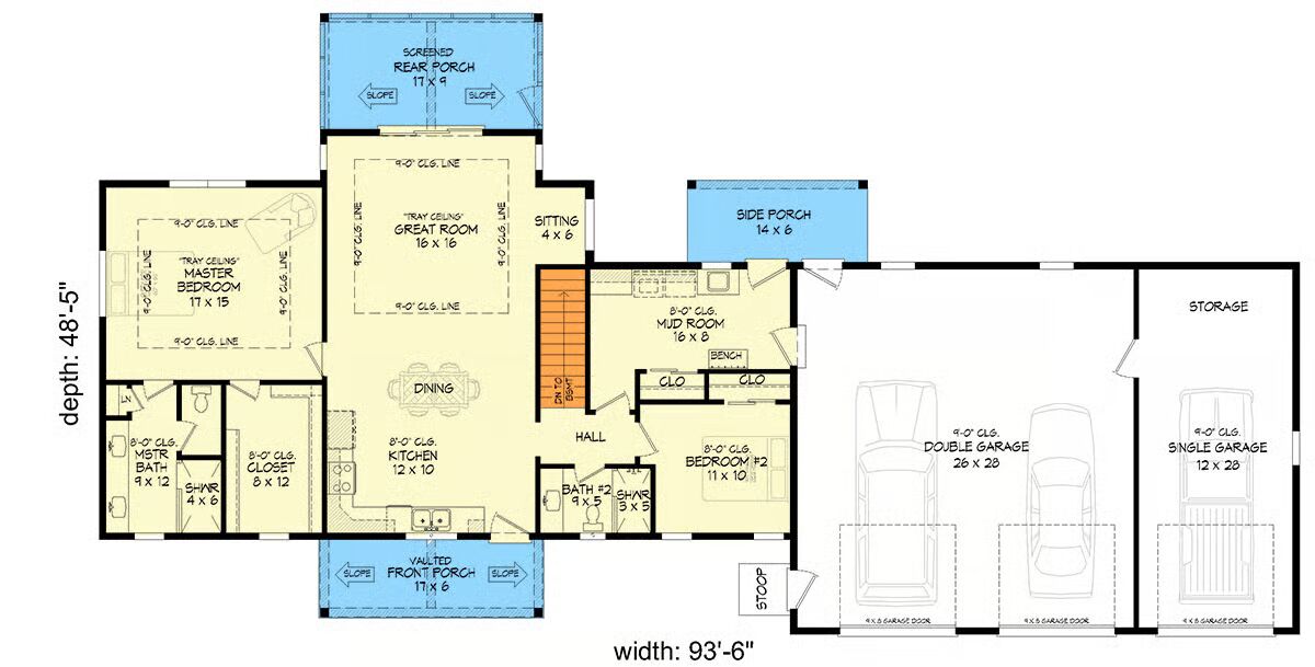
This 1,491 sq. ft. Barndominium-inspired ranch combines modern comfort with Country-Craftsman charm, highlighted by dark horizontal siding, warm timber accents, and an impressive 1,139 sq. ft. attached 3-car garage.
A timber-framed front porch welcomes you inside to a thoughtfully designed living space ideal for both everyday comfort and easy entertaining.
Practical features include a main-level laundry room and a dedicated mudroom, seamlessly connecting the garage to the home for added convenience.
The desirable split-bedroom layout ensures privacy, with a main-level owner’s suite offering a peaceful retreat, while the secondary bedroom and full bath are positioned separately for guests or family members.
Outdoor living is equally inviting with a spacious front porch perfect for morning coffee, along with a screened porch ideal for relaxing in comfort during warm evenings.
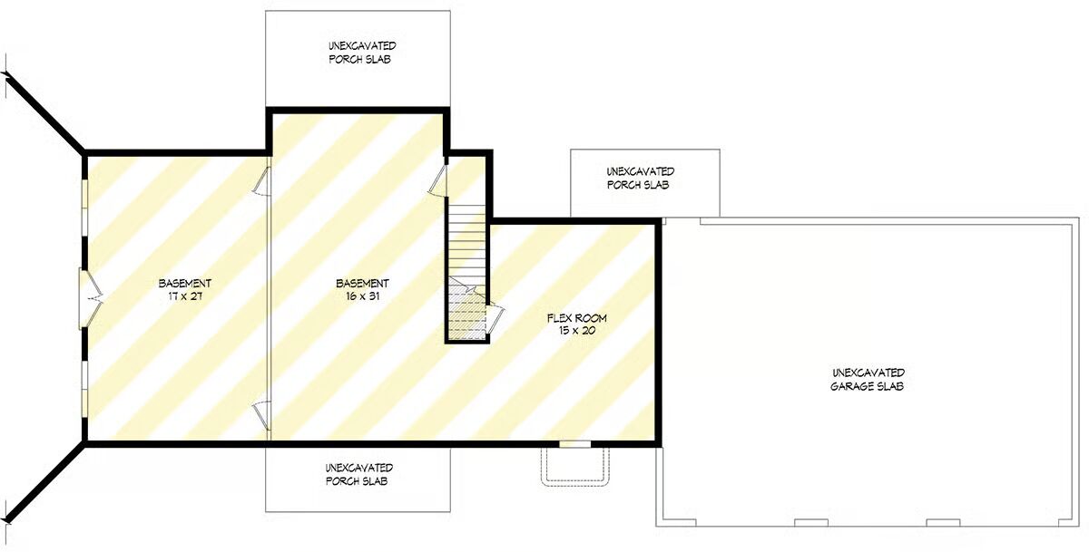
Adding exceptional value, the home includes a full 1,491 sq. ft. unfinished walkout basement, providing outstanding potential for future expansion—whether additional living space, entertainment areas, or a home office tailored to your lifestyle.
=> Looking for a custom Barndominium floor plan? Click here to fill out our form, a member of our team will be in touch.
