Specifications
- Area: 987 sq. ft.
- Bedrooms: 2
- Bathrooms: 1
- Stories: 1
- Garages: 2
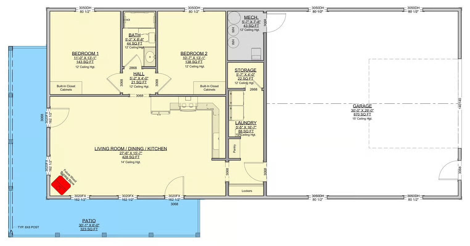
Welcome to the gallery of photos for the Modern Barndominium House with Large Garage. The floor plan is shown below:










Discover cozy modern farmhouse living in this charming 987 sq. ft. barndominium, offering 2 bedrooms, 1 bathroom, and a spacious 870 sq. ft. side-entry two-car garage.
Designed with timeless appeal and everyday comfort in mind, this home blends functionality with inviting style.
Step inside through a welcoming mudroom that keeps the home tidy while providing a smooth transition into the main living areas.
The open-concept layout serves as the heart of the home, showcasing soaring 14-foot ceilings that create an airy, light-filled atmosphere. The living room, dining area, and kitchen flow seamlessly together—perfect for relaxed daily living or entertaining with ease.
Both bedrooms are thoughtfully positioned on the main level, forming a private sleeping wing. The primary bedroom offers plenty of room to unwind, while the secondary bedroom is ideal for guests, family, or a home office.
A dedicated 39 sq. ft. workshop caters to hobbyists and DIY enthusiasts, and a conveniently located main-level laundry room enhances day-to-day practicality.
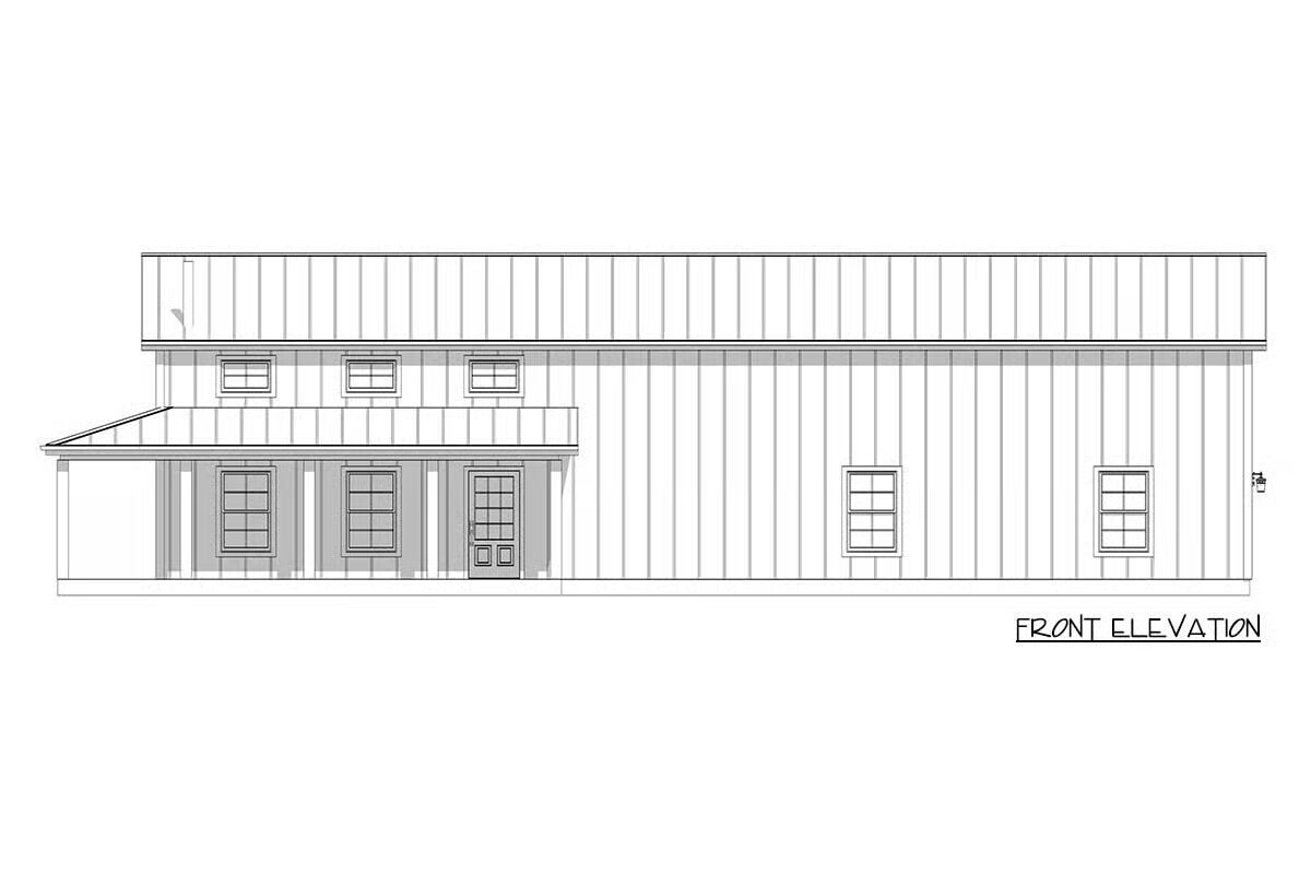
Outdoor living is just as enjoyable, with a generous covered front porch providing the perfect spot to savor morning coffee, unwind in the evening, or take in peaceful surroundings.
This barndominium plan delivers efficient living with modern farmhouse charm—ideal for those seeking style, simplicity, and comfort.
=> Looking for a custom Barndominium floor plan? Click here to fill out our form, a member of our team will be in touch.
