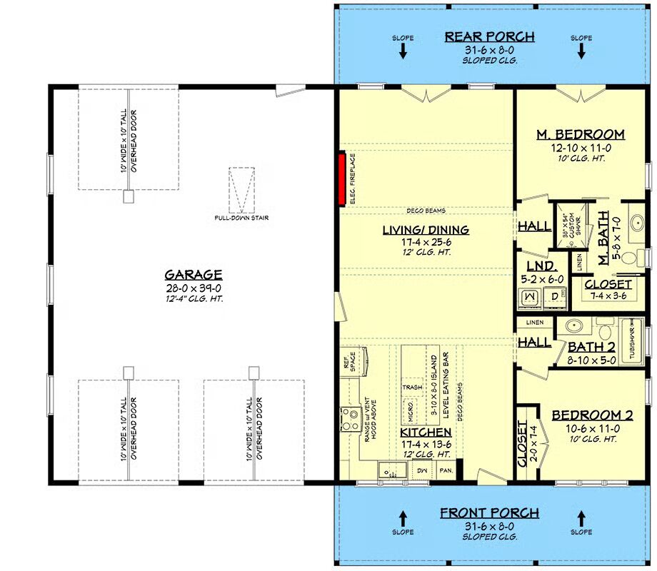
Specifications
- Area: 1,260 sq. ft.
- Bedrooms: 2
- Bathrooms: 2.5
- Stories: 1
- Garages: 3-4
Welcome to the gallery of photos for the Modern Barndominium House with Expansive 4-Car Garage. The floor plans are shown below:










Experience the perfect blend of modern comfort and farmhouse charm in this 1,260 sq. ft. Barndominium-Style Modern Farmhouse Plan, featuring 2 bedrooms, 2.5 bathrooms, and an expansive 1,140 sq. ft. 4-car garage.
Step inside to an inviting open-concept living and dining area highlighted by 12-foot ceilings and decorative wood beams that add warmth and character.
The gourmet kitchen takes center stage with a large island and casual eating bar, flowing effortlessly into the spacious living room anchored by a cozy electric fireplace. Sliding glass doors open to a covered rear porch, ideal for enjoying seamless indoor-outdoor living.
The split-bedroom layout ensures privacy, placing the primary suite on one side—complete with a luxurious private bath and generous closet—while the secondary bedroom and full bath occupy the other wing, perfect for guests or family.
Car enthusiasts and hobbyists will love the massive 4-car garage, offering endless possibilities for storage, a workshop, or creative pursuits, with four overhead doors for maximum accessibility.
Enjoy your morning coffee on the 252 sq. ft. covered front porch, or unwind with evening gatherings on the matching rear porch, both offering charming, sheltered spaces to relax and entertain.
This modern farmhouse delivers style, function, and versatility—ideal for those seeking a contemporary country lifestyle.
=> Looking for a custom Barndominium floor plan? Click here to fill out our form, a member of our team will be in touch.
