Specifications
- Area: 1,292 sq. ft.
- Bedrooms: 2
- Bathrooms: 2
- Stories: 1
- Garages: 3
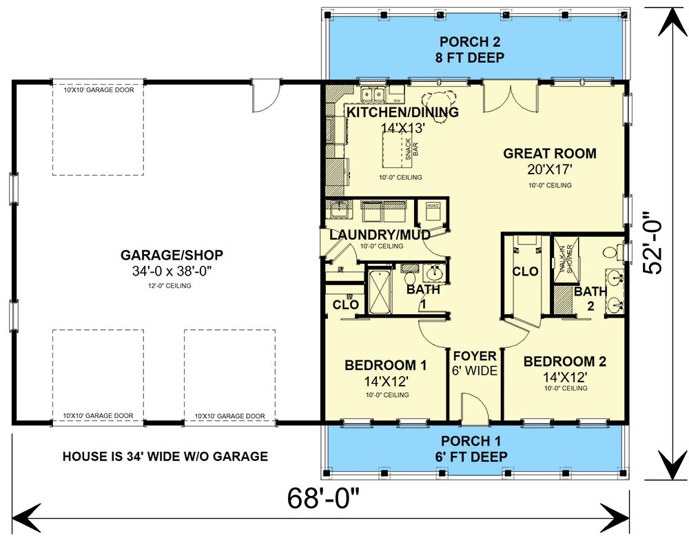
Welcome to the gallery of photos for the Barndominium Style House with Nearly 1300 Square Feet of Living and Garage Space. The floor plan is shown below:
















This barndominium-inspired farmhouse plan offers 1,292 sq. ft. of thoughtfully designed living space, featuring 2 bedrooms and 2 bathrooms, paired with a massive 1,292 sq. ft. garage that includes dedicated workshop space.
Inside, the foyer is flanked by two bedrooms, with Bedroom 2 enjoying its own private ensuite bath. The rear of the home opens to an expansive living area, highlighted by an L-shaped kitchen with a center island, snack bar, and ample storage.
French doors extend the great room outdoors, leading to an 8’-deep covered rear porch perfect for relaxing or entertaining.
Practical touches include a mudroom with laundry that seamlessly connects the living quarters to the garage.
The oversized garage features a drive-through bay with 10′ by 10′ overhead doors at both the front and back, offering ultimate convenience for vehicles, equipment, or hobby use.
=> Looking for a custom Barndominium floor plan? Click here to fill out our form, a member of our team will be in touch.
