1-Bedroom Barndominium with 3-Car Garage on Ground Level (Floor Plan)

20 Shares

Specifications

  • Area: 680 sq. ft.
  • Bedrooms: 1
  • Bathrooms: 1
  • Stories: 2
  • Garages: 3

Welcome to the gallery of photos for the Barndominium with 3-Car Garage on Ground Level. The floor plans are shown below:

 

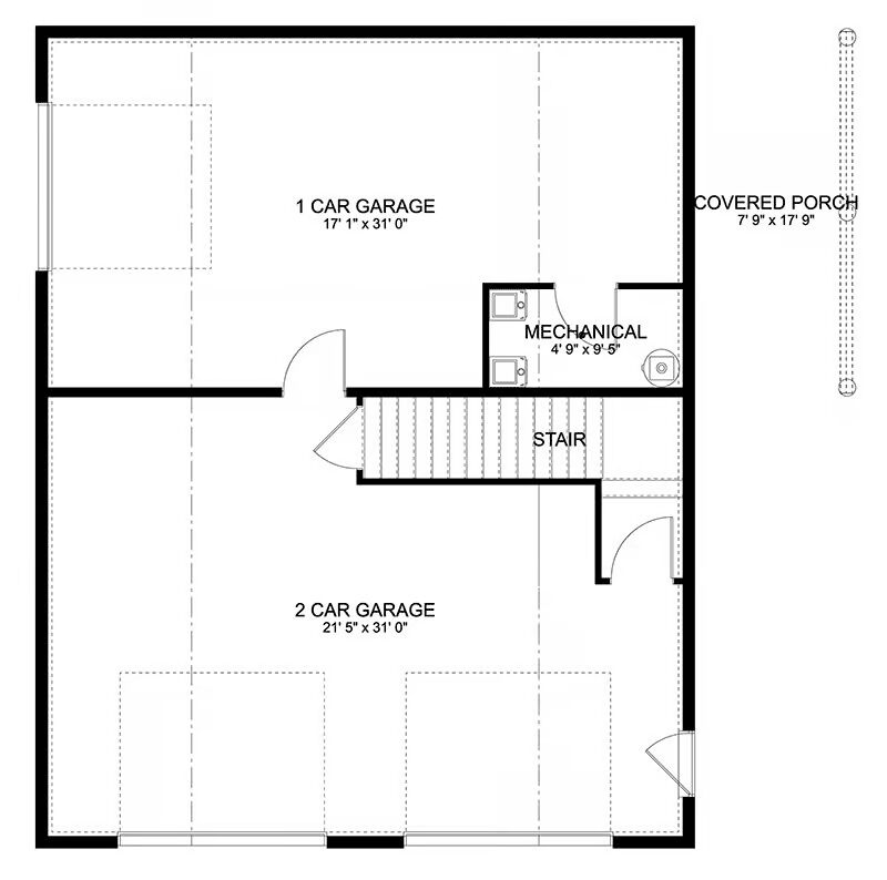
Main level floor plan
Second level floor plan

Buy This Plan

 

This inviting blue Barndominium concept features two large garage doors and a centered window with rustic shutters.
This striking Barndominium-style house features rustic wood siding, dual garage doors, and a charming upper balcony.
A picturesque Barndominium with two-story rustic wood siding, offering a great balance of storage and living space.
The side view of this Barndominium showcases its warm, reclaimed wood aesthetic and prominent stone-base foundation.
This large Barndominium features a weathered wood exterior with a convenient covered lean-to for outdoor storage.
Framed by trees, this Barndominium highlights a spacious upper balcony and plenty of room for vehicles and equipment.
A modern-style Barndominium concept featuring a soft blue exterior, a side entry, and a covered porch extension.
This blue Barndominium’s side elevation features a simple upper story and a practical covered area on the main floor.
The rear view of the blue Barndominium emphasizes its ample garage space and classic vertical board and batten siding.
A bright and tidy garage interior offering a clear space for vehicle storage and easy access to the house stairs.
This clean, well-lit garage interior provides a spacious and secure home for a luxury sedan.
A colorful first glance into the living area, featuring a vibrant yellow couch and a unique round mirror.
The cozy living room blends a bright yellow sofa with a bold, eclectic rug and a small dining nook.
The modern kitchen showcases clean white cabinetry, stainless steel appliances, and a colorful rug anchoring the space.

Buy This Plan

This farmhouse-inspired carriage house plan combines timeless charm with practical functionality, offering garage space for three vehicles and a comfortable one-bedroom in-law suite on the upper level.

Top 5 Mistakes DIY Barndo Builders Make!
Most self-builders lose $10K+ before breaking ground.
Grab the Planner

The main level features three spacious garage bays with a dedicated mechanical room, providing ample space for vehicles, storage, or a workshop. Exposed beams throughout add rustic character and architectural appeal.

Upstairs, the private in-law suite showcases a vaulted great room that seamlessly connects to an L-shaped kitchen, creating an inviting open-concept living space.

A spacious bedroom, full bathroom, and convenient hall closet complete the thoughtfully designed layout, offering both comfort and independence for guests or extended family.

A charming covered porch extends from one side of the carriage house, providing the perfect spot to relax and enjoy the serene surroundings.

Blending farmhouse warmth with modern functionality, this carriage house is ideal as a guest retreat, multi-generational suite, or stylish secondary dwelling.

=> Looking for a custom Barndominium floor plan? Click here to fill out our form, a member of our team will be in touch.

💸 80% of Barndo Budgets Blow Up in Planning
Get the $7 tool that helps you avoid delays, overbidding & costly mistakes.
Grab the $7 Planner
20 Shares

Lisa Young

Lisa Young, writer and construction pro, crafts custom homes. Captivated by barndominiums for four years, she shares insights and advice in engaging articles, empowering readers to create unique living spaces mirroring their aspirations. Join her exciting journey exploring barndominium living.

Recent Posts