Specifications
- Area: 2,426 sq. ft.
- Bedrooms: 3
- Bathrooms: 2.5
- Stories: 2
- Garages: 2
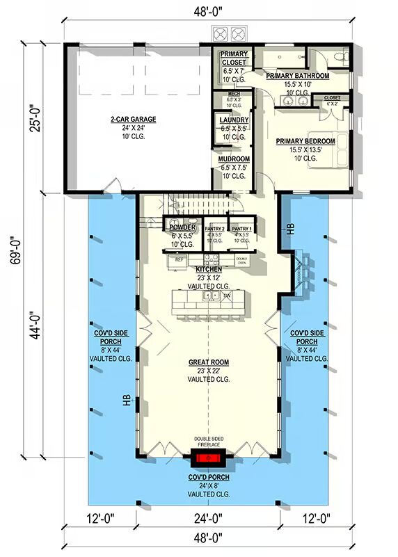
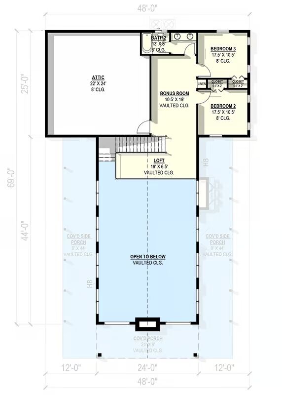
Welcome to the gallery of photos for the Modern Farmhouse House with Vaulted Great Room and Wrap-Around Porch. The floor plans are shown below:







Discover contemporary country living in this stunning Modern Farmhouse, offering 2,426 sq. ft. of heated living space with 3 bedrooms, 2.5 baths, and an attached 607 sq. ft. 2-car garage.
Wrapped in bold dark siding and warm natural wood accents, this home captures a refined barndominium aesthetic that stands out with modern sophistication.
Step inside through the convenient rear-entry garage to find a well-designed mudroom, ideal for daily comings and goings. This functional area provides direct access to the main-level laundry room and a powder bath, creating an effortless flow for busy households.
The heart of the home opens into an impressive vaulted Great Room and Kitchen, where soaring ceilings and abundant natural light create a grand and inviting atmosphere.
A double-sided fireplace serves as the focal point of the Great Room, while the gourmet kitchen offers generous counter space and dual pantries, perfect for storage and meal preparation.
The main-level primary suite provides a peaceful retreat, complete with two spacious closets and a luxurious en-suite bath. Upstairs, two additional bedrooms share a full bath and enjoy access to a flexible loft space, ideal for a home office, play area, or lounge.
Outdoor living is elevated with an expansive 873 sq. ft. wrap-around covered porch, inviting you to relax, entertain, and enjoy the surrounding views year-round.
Whether sipping morning coffee or hosting evening gatherings, this spacious veranda offers the perfect extension of your living space.
=> Looking for a custom Barndominium floor plan? Click here to fill out our form, a member of our team will be in touch.
