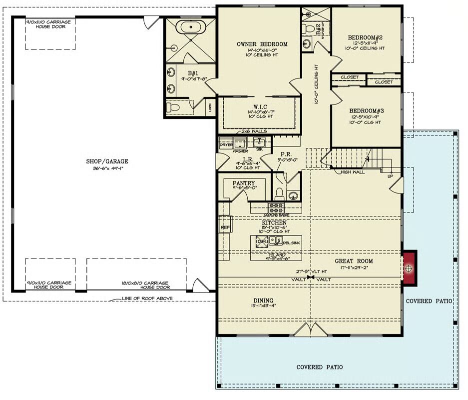
Specifications
- Area: 2,577 sq. ft.
- Bedrooms: 3-4
- Bathrooms: 2.5-3.5
- Stories: 1
- Garages: 3-4
Welcome to the gallery of photos for the Modern Farmhouse Barndominium with Loft and Optional Bonus Rooms – 2577 Sq Ft. The floor plans are shown below:




















Discover country living at its finest with this Modern Farmhouse Barndominium, designed with conventional wood framing and 2×6 exterior walls.
A wraparound porch, soaring 2-story vaulted great room, and an oversized 36’6″ x 49’1″ garage workshop make this home as functional as it is inviting.
The open-concept design creates a spacious hub for gatherings, highlighted by a cozy fireplace and a kitchen island with eating bar for casual dining. Two sets of French doors lead to the expansive covered patio that surrounds the great room, blending indoor and outdoor living.
The main level features three bedrooms, including a luxurious master suite with a freestanding tub, walk-in shower, and pocket-door access to a generous walk-in closet.
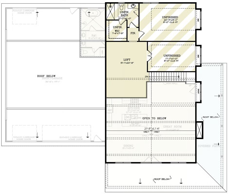
Upstairs, you’ll find a versatile loft, ample storage space, and the option for a fourth bedroom suite, offering flexibility for family or guests.
=> Looking for a custom Barndominium floor plan? Click here to fill out our form, a member of our team will be in touch.
