Specifications
- Area: 2,227 sq. ft.
- Bedrooms: 3
- Bathrooms: 2.5
- Stories: 2
- Garages: 3
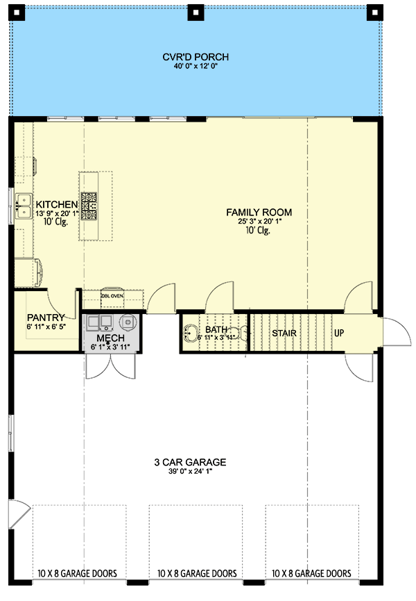
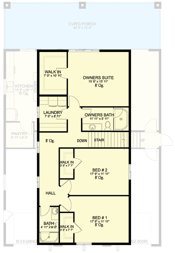
Welcome to the gallery of photos for a Barndominium House with 3 Garage Bays. The floor plans are shown below:






Buy This Plan










Step into a realm where sophistication meets comfort, in this illustrious 3-bedroom Barndominium. Unfolding over 2,200 square feet of sumptuous living area, every corner, every turn is an ode to luxury infused with practicality.
Three expansive garage bays stand as sentinels of convenience, each adorned with a 10′ by 8′ door that not only ensures easy access but adds a touch of architectural elegance to the structure. Here, functionality meets aesthetics, creating a space that’s as practical as it is pleasing to the eye.
As you venture into the main level, prepare to be greeted by an expanse of living space where minimal walls echo the ethos of boundless living.
The family room, a sanctum of warmth and togetherness, flows seamlessly into the eat-in kitchen, a culinary haven where every feature, every appliance, is a testament to modernity and efficiency.
Grandeur finds a new expression in the oversized glass doors, a portal where the interior elegance melds into the exterior splendor.
Step out and immerse yourself in the embrace of a 40′ by 12′ covered porch, a space where every breath is a melody of tranquility, every moment a dance of serenity amidst nature’s breathtaking tableau.
The journey of opulence ascends to the upper level, where three inviting bedrooms offer a sanctuary of rest and relaxation.
Elegance meets functionality in the convenient laundry room, a thoughtful addition that exemplifies the meticulous design ethos of this remarkable Barndominium.
In the owner’s suite, luxury finds a home. Accompanied by a generous closet, this space is an enclave of comfort, echoing a personal touch of sophistication. It shares a full bathroom with neighboring rooms, weaving a tapestry of convenience and privacy.
Bedrooms 2 and 3, symmetrical in their grandeur, are mirrors of architectural artistry. They share a well-appointed hall bath, epitomizing the thoughtful integration of shared and personal spaces.
In every line, every curve, this 3-bedroom Barndominium stands as a testament to a design philosophy where luxury, convenience, and architectural artistry converge. It’s more than a dwelling; it’s a living experience where every day is a sojourn into a world of elegance, comfort, and unbridled luxury.
Welcome home to a masterpiece of modern living.
=> Looking for a custom Barndominium floor plan? Click here to fill out our form, a member of our team will be in touch.

