Specifications
- Area: 4,320 sq. ft.
- Bedrooms: 0
- Bathrooms: 0
- Stories: 1
- Garages: 3
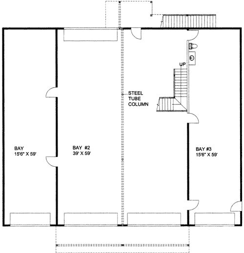
Welcome to the gallery of photos for the Barndo-Style RV Garage with 4,320 Square Feet of Parking Space. The floor plans are shown below:






This impressive barndominium-style RV garage house plan combines functionality with rustic charm, offering an expansive 4,320 square feet of parking space across three bays.
The four garage doors include a double-wide center bay, providing ample room for RVs, vehicles, or large equipment.
Both interior and exterior staircases lead to a spacious loft-style upper level, ideal for use as a workshop, storage area, studio, or future living quarters.
Perfect for hobbyists, collectors, or those seeking flexible space, this versatile barndo design delivers exceptional utility with timeless barn-inspired appeal.
=> Looking for a custom Barndominium floor plan? Click here to fill out our form, a member of our team will be in touch.
