Specifications
- Area: 4,644 sq. ft.
- Bedrooms: 6
- Bathrooms: 4
- Stories: 2
- Garages: 2
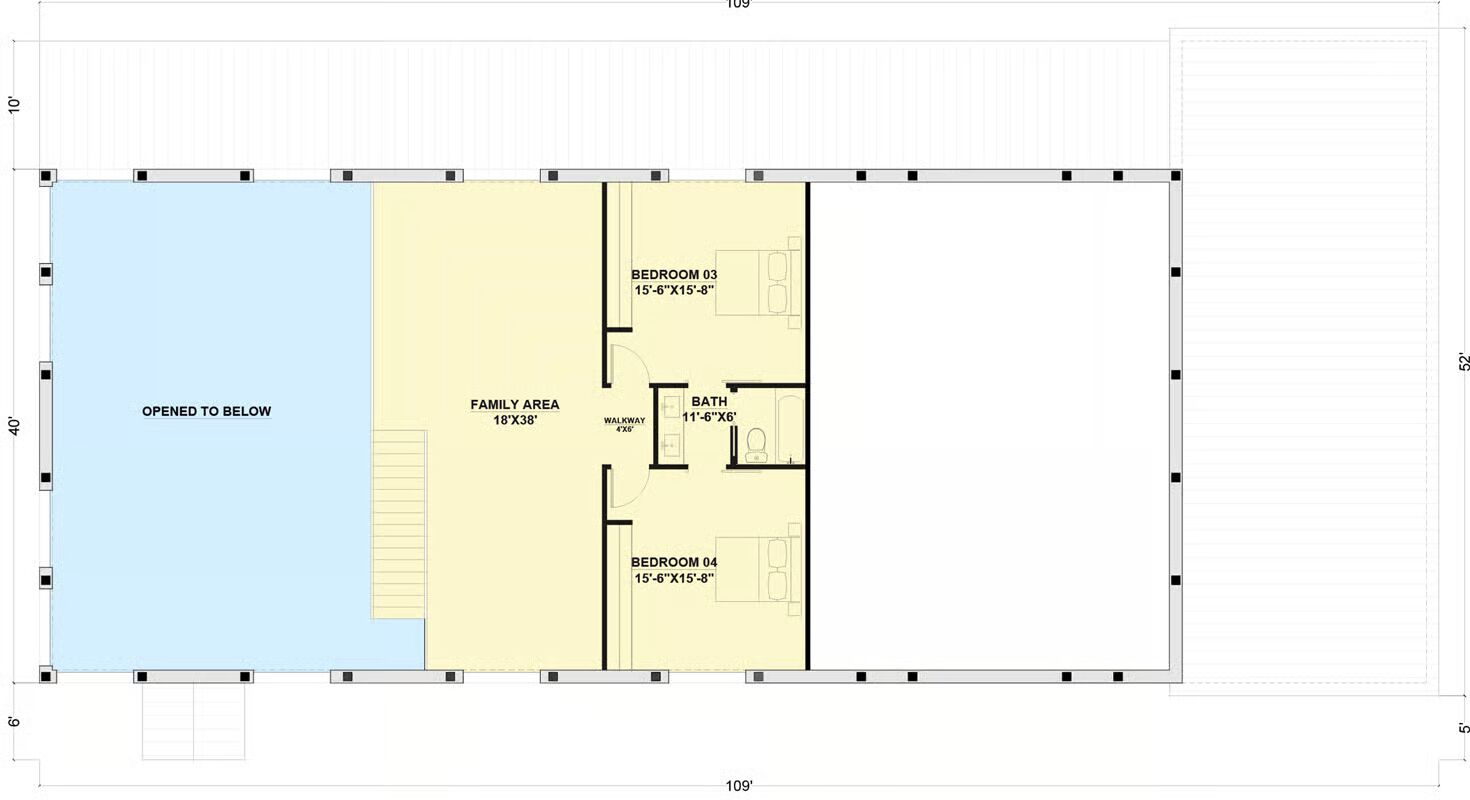
Welcome to the gallery of photos for the Post-Frame Barndominium House with Attached 2-Bed Apartment – 4644 Sq Ft. The floor plans are shown below:











Blending timeless farmhouse charm with modern functionality, this 4,644 sq. ft. two-story barndominium is designed for large families and multi-generational living.
The home features a 1,160 sq. ft. garage with two bays—or an optional drive-through bay—and 928 sq. ft. of covered porch space, ideal for outdoor relaxation and entertaining.
The open-concept main home is anchored by a sun-filled living room with a cozy fireplace, flowing seamlessly into the chef-inspired kitchen and dining area. The kitchen boasts a large island, 6-burner cooktop, and an expansive walk-in pantry, making it a true culinary centerpiece.
The first-floor primary suite is a private retreat, complete with a spa-like bath offering a double vanity, makeup station, walk-in shower, private toilet, and a massive walk-in closet.
An additional bedroom with walk-in closet, a full bath, large laundry room, and extra storage closet enhance the functionality of the main level.
A unique highlight of this home is the private two-bedroom apartment, separated from the main residence by the garage.
With its own kitchen, living area, and full bath—as well as access from both the garage and a private exterior entrance—this flexible space is perfect as a mother-in-law suite, guest quarters, or rental unit.
Upstairs, the home continues to impress with two bedrooms featuring walk-in closets, connected by a Jack-and-Jill bath. A spacious family/game room completes the second level, providing plenty of room for recreation and relaxation.
This thoughtfully designed barndominium offers the perfect balance of style, comfort, and versatility, making it an ideal home for growing families or those seeking additional living options.
=> Looking for a custom Barndominium floor plan? Click here to fill out our form, a member of our team will be in touch.
