Specifications
- Area: 2,417 sq. ft.
- Bedrooms: 4
- Bathrooms: 3
- Stories: 2
- Garages: 1
Welcome to the gallery of photos for the Two-Story Barndominium-Style Farmhouse with Large Loft – 2417 Sq Ft. The floor plans are shown below:





























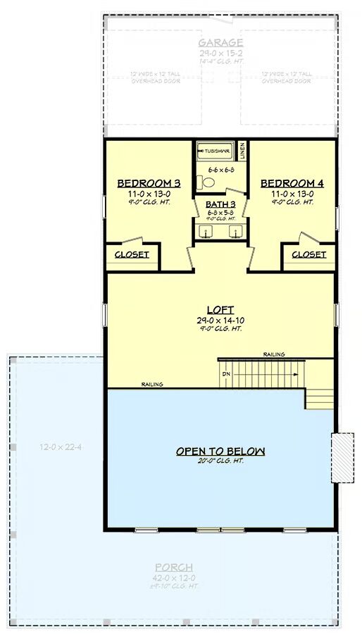
This two-story barndominium-style home offers 2,417 sq. ft. of living space with 4 bedrooms and 3 bathrooms, thoughtfully designed with conventional wood framing and 2×6 exterior walls.
A corner wraparound porch welcomes you inside to an open-concept great room, dining area, and L-shaped kitchen beneath a soaring 20′ two-story ceiling.
The kitchen features a spacious 4’6″ x 6’6″ island, while the dining nook with sliding glass doors extends onto the covered porch. A wood-burning fireplace adds warmth and character to the open living area.
The main-floor primary suite includes a luxurious five-piece bath and walk-in closet, joined by a guest bedroom, full bath, laundry room, and convenient drop-zone lockers.
A rear hallway leads directly to the side-entry drive-through garage, complete with oversized 12′ x 12′ doors—perfect for RVs, trailers, or oversized vehicles.
Upstairs, a large loft overlooking the great room offers flexible space for a lounge, game room, or home office. Two additional bedrooms share a Jack-and-Jill bath with dual vanities and private bath/shower access.
=> Looking for a custom Barndominium floor plan? Click here to fill out our form, a member of our team will be in touch.
