Specifications
- Area: 4,913 sq. ft.
- Bedrooms: 4
- Bathrooms: 3.5
- Stories: 2
- Garages: 6
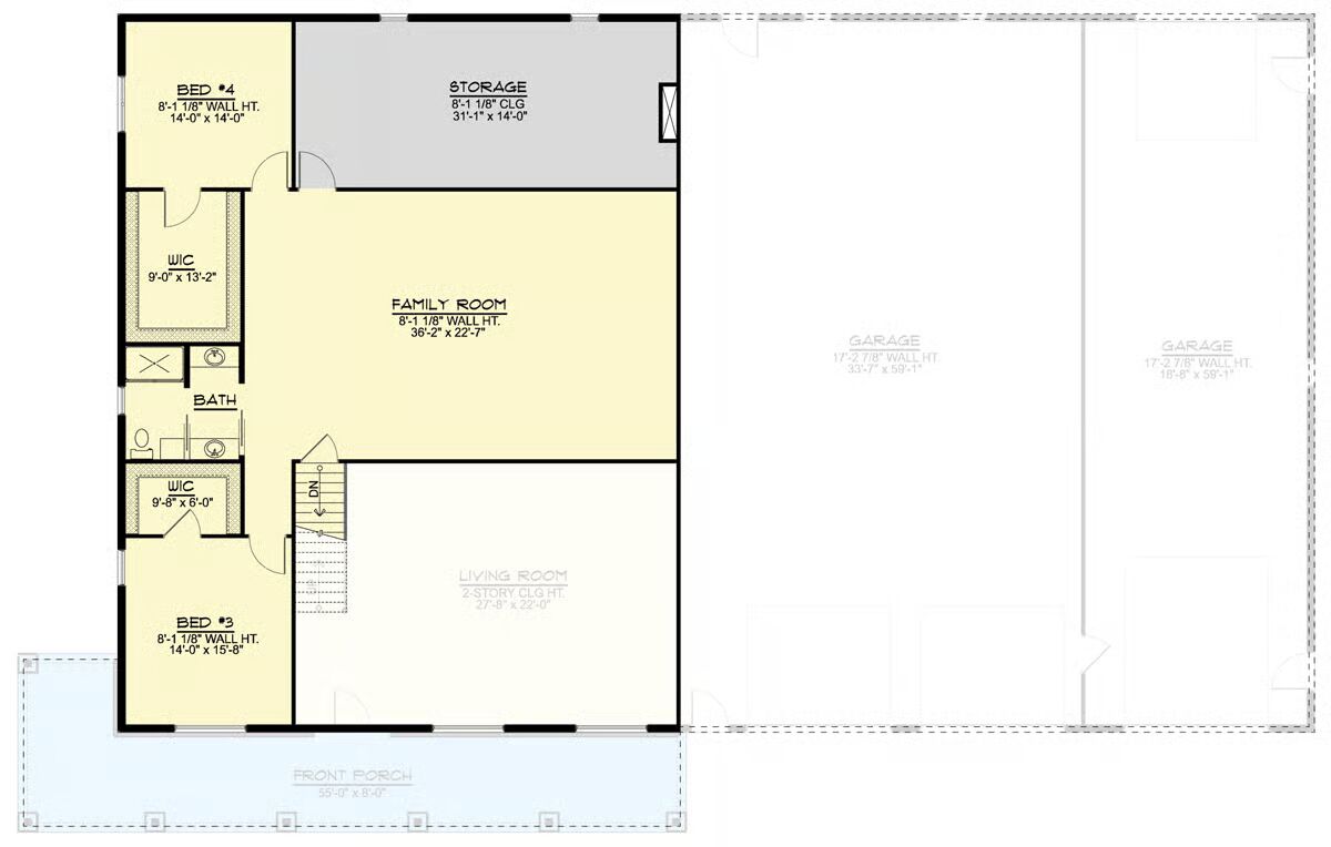
Welcome to the gallery of photos for the Barndominium with 6-Car Garage / RV Bay. The floor plans are shown below:


Buy This Plan





This impressive barndominium-style home combines generous living spaces with exceptional utility, offering a 4-bedroom residence on the left and an expansive 3,180 sq. ft. attached garage on the right—perfect for car enthusiasts, hobbyists, or RV and boat owners.
A wide, welcoming front porch leads you inside, where a soaring two-story ceiling elevates the living room and creates a bright, open atmosphere. Just steps away, a dedicated home office provides a quiet and convenient workspace.
The dining room seamlessly connects to the well-appointed island kitchen, featuring abundant counter space and a spacious walk-in pantry ideal for bulk storage and everyday convenience.
Upstairs, large closets and a dedicated storage room ensure ample room for seasonal items, household supplies, and organizational needs.
The attached garage includes three overhead doors, with one oversized bay designed to accommodate RVs, boats, or large equipment—making this property exceptionally versatile.
Durable corrugated metal siding completes the exterior, delivering the signature barndominium aesthetic with long-lasting, low-maintenance appeal.
Combining style, storage, and functionality, this barndominium is crafted for modern living with room to grow.
=> Looking for a custom Barndominium floor plan? Click here to fill out our form, a member of our team will be in touch.
