Specifications
- Area: 2,992 sq. ft.
- Bedrooms: 4
- Bathrooms: 3.5
- Stories: 2
- Garages: 0
Welcome to the gallery of photos for the Barndominium-Style House with Wrap-Around Porch and Game Room – 2761 Sq Ft. The floor plans are shown below:






























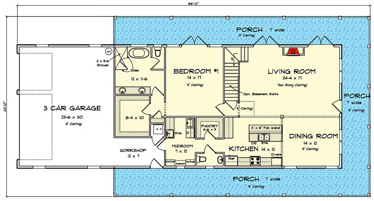
This 4-bedroom, 3.5-bath barndominium plan offers 2,761 sq. ft. of heated living space, designed with durable 2×6 exterior walls. A spacious 808 sq. ft. 3-car garage with workshop space and a 7’-deep wraparound porch add both functionality and charm.
The main level features an inviting living room with a cozy fireplace and three sets of French doors leading to the porch, seamlessly blending indoor and outdoor living. The open layout continues into the dining room and kitchen, perfect for gatherings.
The main-floor master suite offers privacy and convenience with its own French door access to the porch, a generous walk-in closet, and a spa-like five-fixture bath.
Upstairs, a loft-style game room overlooks the living area below. Bedroom 2 includes a private bath and walk-in closet, while Bedrooms 3 and 4 share a Jack-and-Jill bathroom, creating a functional and family-friendly layout.
=> Looking for a custom Barndominium floor plan? Click here to fill out our form, a member of our team will be in touch.

