Specifications
- Area: 2,700 sq. ft.
- Bedrooms: 4
- Bathrooms: 3
- Stories: 1
- Garages: 3
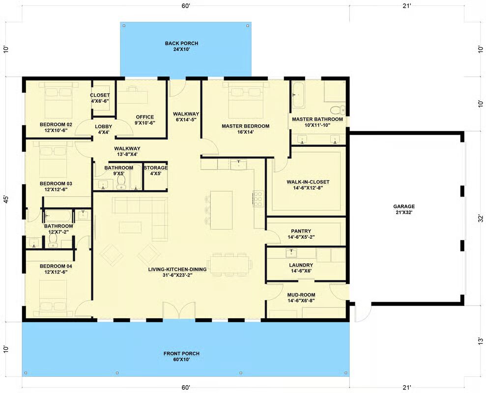
Welcome to the gallery of photos for the Barndominium-Style House with 3-Car Garage – 2700 Sq Ft. The floor plan is shown below:









Discover the perfect blend of style, space, and functionality in this stunning barndominium, offering 2,700 sq. ft. of living area, a 672 sq. ft. 3-bay garage, and 840 sq. ft. of covered porch space.
A full-length front porch creates a welcoming first impression and the ideal spot to relax outdoors.
Inside, the home features 4 bedrooms and 3 full baths, plus a versatile bonus room ideal for an office, hobby space, or guest suite.
The primary suite is a luxurious retreat with a spa-inspired bath showcasing a soaking tub, separate shower, dual vanities, and a massive walk-in closet.
Two secondary bedrooms share a convenient Jack-and-Jill bath, while a dedicated mudroom with an adjoining laundry area adds everyday ease and efficiency.
At the heart of the home, the gourmet kitchen is designed for both family living and entertaining.
Highlights include a large island, space for a 6-burner range, and an oversized walk-in pantry, all open to the spacious living area enhanced by soaring 12′ ceilings and a peak height of 23’3″.
Practicality meets flexibility in the 3-bay garage, perfect for vehicles, storage, or workshop use. With its open layout, thoughtful design, and impressive finishes, this barndominium is more than a home—it’s a lifestyle.
=> Looking for a custom Barndominium floor plan? Click here to fill out our form, a member of our team will be in touch.
