Specifications
- Area: 1,428 sq. ft.
- Bedrooms: 2
- Bathrooms: 2.5
- Stories: 2
- Garages: 4-6
Welcome to the gallery of photos for the 3500 Sq Ft Modern Barndominium Garage Plan with 1400 Sq Ft 2-Bed Apartment Above. The floor plans are shown below:


Buy This Plan









This modern barndominium-style garage plan combines versatility and function, offering expansive vehicle storage, a spacious workshop, and a comfortable living space above.
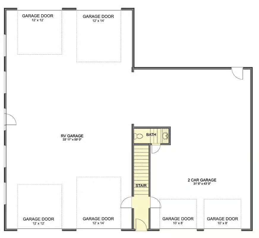
The main level features two distinct garage areas separated by a central stairway leading to the upper apartment. On the right, you’ll find a 31′ x 43′ oversized 2-car garage equipped with two 10′ x 8′ overhead doors, perfect for everyday vehicles or hobby projects.
To the left, a 34′ x 59′ drive-through RV garage includes both a 12′ x 12′ and 12′ x 14′ overhead door, providing ample clearance for RVs, boats, trailers, or motorized equipment—ideal for outdoor enthusiasts and collectors alike.
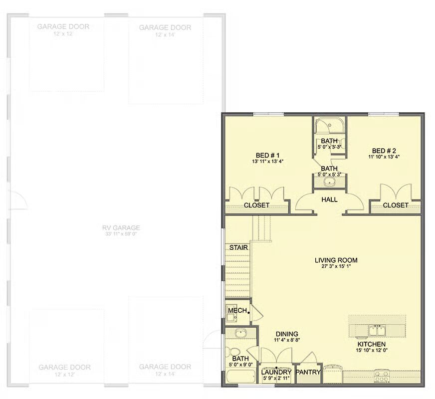
Upstairs, a spacious 1,428 sq. ft. apartment offers comfortable living with two bedrooms and two baths, including a Jack-and-Jill bath conveniently shared between the bedrooms.
This flexible upper level is perfect as a guest suite, rental unit, or full-time residence, combining practicality with contemporary barndominium charm.
=> Looking for a custom Barndominium floor plan? Click here to fill out our form, a member of our team will be in touch.
