Specifications
- Area: 1,617 sq. ft.
- Bedrooms: 3
- Bathrooms: 2
- Stories: 1
- Garages: 3
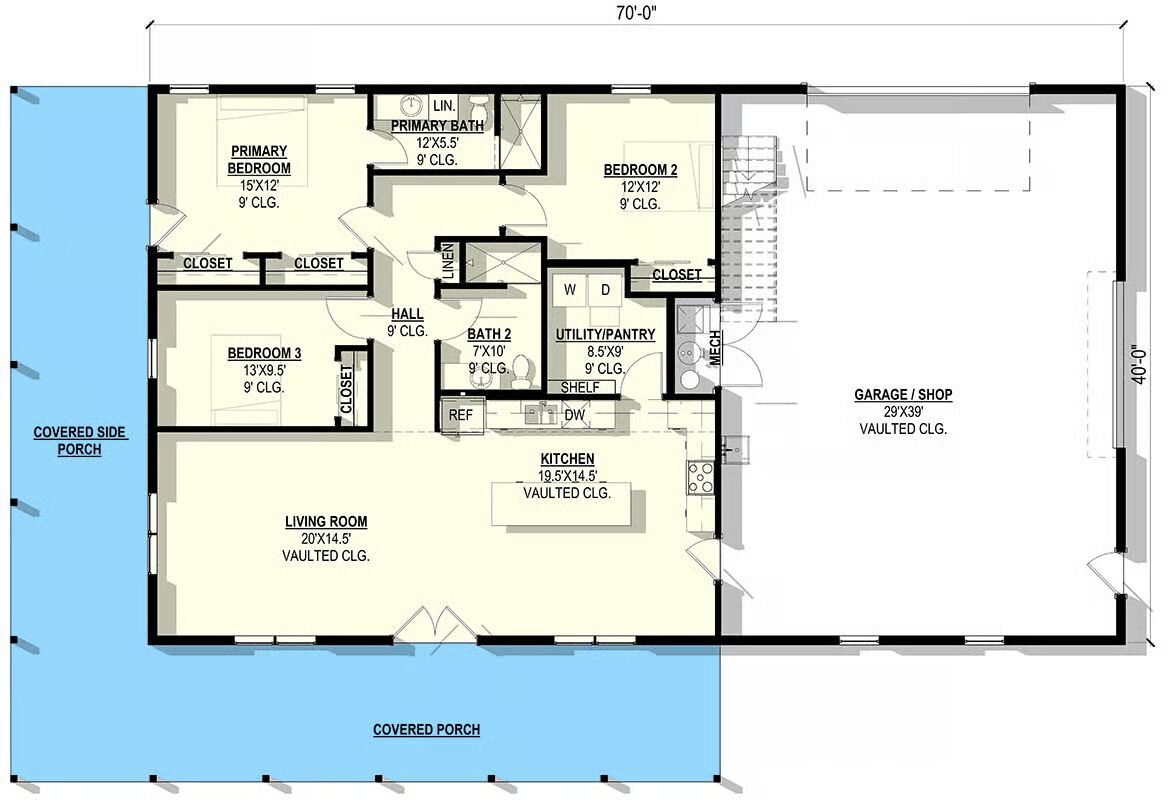
Welcome to the gallery of photos for the Modern Barndominium House : Vaulted Living, Wrap-Around Porch, 3-Car Shop. The floor plan is shown below:







Experience timeless country charm and modern functionality in this 1,617 sq. ft. Barndominium, offering 3 bedrooms, 2 full bathrooms, and an impressive 1,160 sq. ft. attached 3-car garage and workshop.
The exterior showcases classic blue vertical siding paired with warm wood accents, creating inviting curb appeal.
Step inside from the welcoming covered porch and into the heart of the home, where an open-concept, vaulted living room and kitchen create a bright, expansive gathering space.
The generously sized 19.5′ x 14.5′ vaulted kitchen flows effortlessly into the 20′ x 14.5′ living room, making it ideal for everyday living, entertaining, and hosting family gatherings.
A well-planned utility room—complete with a walk-in pantry and laundry—provides direct access to the oversized garage, adding everyday convenience and efficient organization.
The primary bedroom suite, privately tucked away on the main level, offers a peaceful retreat with a spacious 15′ x 12′ layout, dual closets, and a private ensuite bath.
Two additional bedrooms and a shared full bath are thoughtfully grouped nearby, offering comfort and accessibility for family or guests.
Perfect for hobbyists or those needing extra storage, the 1,160 sq. ft. attached garage/shop boasts a vaulted ceiling and abundant space for vehicles, tools, and projects of all kinds.
Outdoor living is abundant thanks to the expansive 910 sq. ft. wrap-around covered porch, providing multiple shaded spaces to enjoy morning coffee, unwind at sunset, or take in the surrounding landscape from nearly every viewpoint.
This charming Barndominium blends style, comfort, and practicality—ideal for those seeking inviting spaces both indoors and out.
=> Looking for a custom Barndominium floor plan? Click here to fill out our form, a member of our team will be in touch.
