Specifications
- Area: 2,250 sq. ft.
- Bedrooms: 3
- Bathrooms: 2.5
- Stories: 2
- Garages: 4
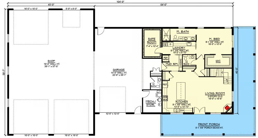
Welcome to the gallery of photos for the Farmhouse-Inspired Barndominium House with Massive 3,602 Square Foot Garage. The floor plans are shown below:


Buy This Plan




This deluxe Barndominium home plan blends rustic charm with modern functionality, featuring durable 2×6 exterior wall framing and a striking design where board and batten siding complements the ribbed metal roof for a cohesive farmhouse aesthetic.
On the left side of the home, an expansive 3,602 sq. ft. garage offers incredible versatility—complete with a drive-through RV-friendly bay.
A second RV bay with a rear access door, and a traditional bay featuring a 12′ x 12′ overhead door—perfect for large vehicles, equipment, or workshop space.
The wraparound porch enhances the home’s inviting character, surrounding the living room and extending along the entire right side. Inside, the open-concept layout connects the spacious living room seamlessly to the eat-in kitchen, ideal for relaxed family living or entertaining.
The main-level master suite offers both comfort and convenience, with a tiled shower, direct access to the laundry room, and a built-in safe room for peace of mind.
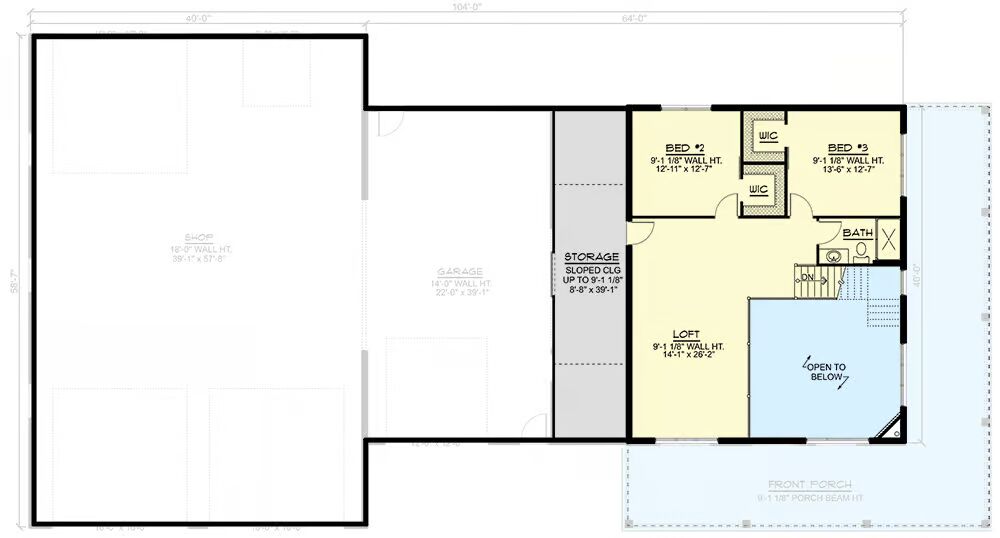
Upstairs, a large loft overlooks the great room below, providing an airy, open feel. Two additional bedrooms share a full bath, while a storage area off the loft includes a unique overlook into the garage below.
Finished with 24-inch vertical board and batten cement board siding, this Barndominium design pairs durability with distinctive style—delivering a perfect balance of practicality, luxury, and timeless rural appeal.
=> Looking for a custom Barndominium floor plan? Click here to fill out our form, a member of our team will be in touch.
