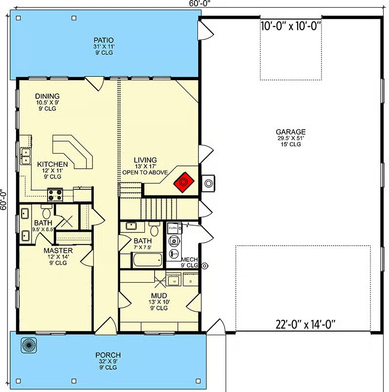
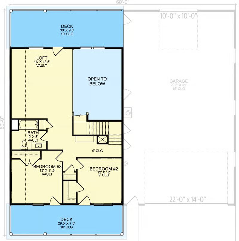
Specifications
- Area: 2,204 sq. ft.
- Bedrooms: 3
- Bathrooms: 3
- Stories: 2
- Garages: 2
Welcome to the gallery of photos for the Barndominium-Style House with Oversized Mudroom – 2204 Sq Ft Living – 1533 Sq Ft Parking. The floor plans are shown below:







This barndominium-style home offers 3 bedrooms, 3 bathrooms, and 2,204 sq. ft. of heated living space, paired with 1,553 sq. ft. of garage and parking featuring overhead doors on both the front and back for easy drive-through access.
An oversized mudroom connects the garage to the main living area, providing a functional transition space ideal for storage, organization, and everyday convenience.
=> Looking for a custom Barndominium floor plan? Click here to fill out our form, a member of our team will be in touch.
