Specifications
- Area: 1,986 sq. ft.
- Bedrooms: 3
- Bathrooms: 2.5+
- Stories: 2
- Garages: 2
Welcome to the gallery of photos for the Barndominium-Style House with Massive Locker Room. The floor plans are shown below:


Buy This Plan






This New American Barndominium-style home combines modern rustic charm with practical design, featuring board and batten siding that complements the ribbed metal roof.
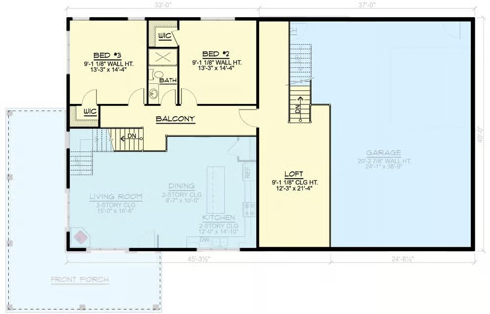
On the right side of the home, a spacious 1,182 sq. ft. garage offers soaring ceilings, a convenient powder bath, and a large locker room with both indoor and outdoor access—perfect for storage and functionality.
A wraparound porch frames the living room, seamlessly connecting to the open-concept eat-in kitchen, creating the ideal space for entertaining and everyday living.
The main-level primary suite boasts a tiled shower, a private bath, and direct access to the laundry room for ultimate convenience.
Upstairs, a generous loft provides flexible living space, while two additional bedrooms share a full bath. Overlooking the living, dining, and kitchen areas below, the loft also offers a balcony view and access to a second staircase leading down to the garage.
=> Looking for a custom Barndominium floor plan? Click here to fill out our form, a member of our team will be in touch.
