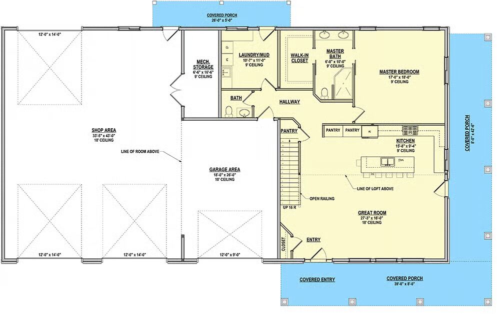
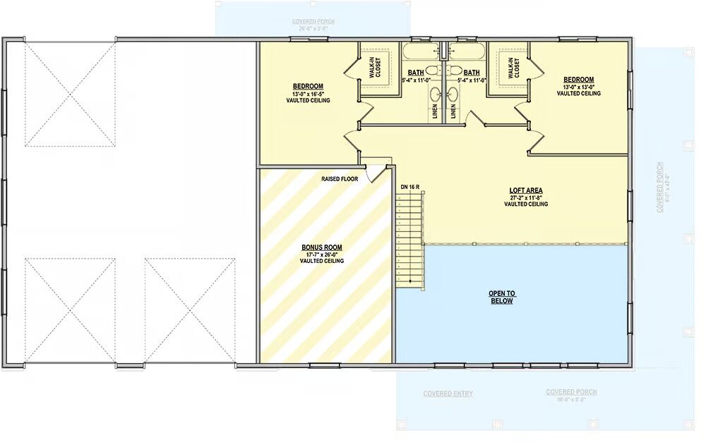
Specifications
- Area: 3,188 sq. ft.
- Bedrooms: 3
- Bathrooms: 3.5
- Stories: 2
- Garages: 3
Welcome to the gallery of photos for the Barndominium-Style Farmhouse with Bonus Room and Workshop Garage – 3188 Sq Ft. The floor plans are shown below:









This beautiful one-and-a-half-story Barndominium-style home offers 3 bedrooms, 2.5 baths, and 3,188 sq. ft. of heated living space, with the option to add a 460 sq. ft. finished bonus room upstairs for even more versatility.
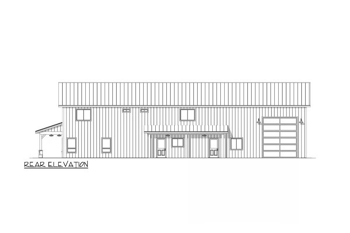
Crafted with conventional wood framing and durable 2×6 exterior walls, this design combines strength and style.
The exterior showcases a striking mix of materials—board and batten siding, stone façade skirting, and a sleek metal roof—all complemented by a welcoming wraparound front porch that enhances its timeless farmhouse charm.
Blending rustic character with modern comfort, this Barndominium plan delivers exceptional curb appeal and flexible living for today’s lifestyle.
=> Looking for a custom Barndominium floor plan? Click here to fill out our form, a member of our team will be in touch.
