Specifications
- Area: 2,779 sq. ft.
- Bedrooms: 3
- Bathrooms: 3.5
- Stories: 2
- Garages: 3-4
Welcome to the gallery of photos for the Barndominium on a Walkout Basement with Wraparound Porch and 2-Story Living Room – 2779 Sq Ft. The floor plans are shown below:









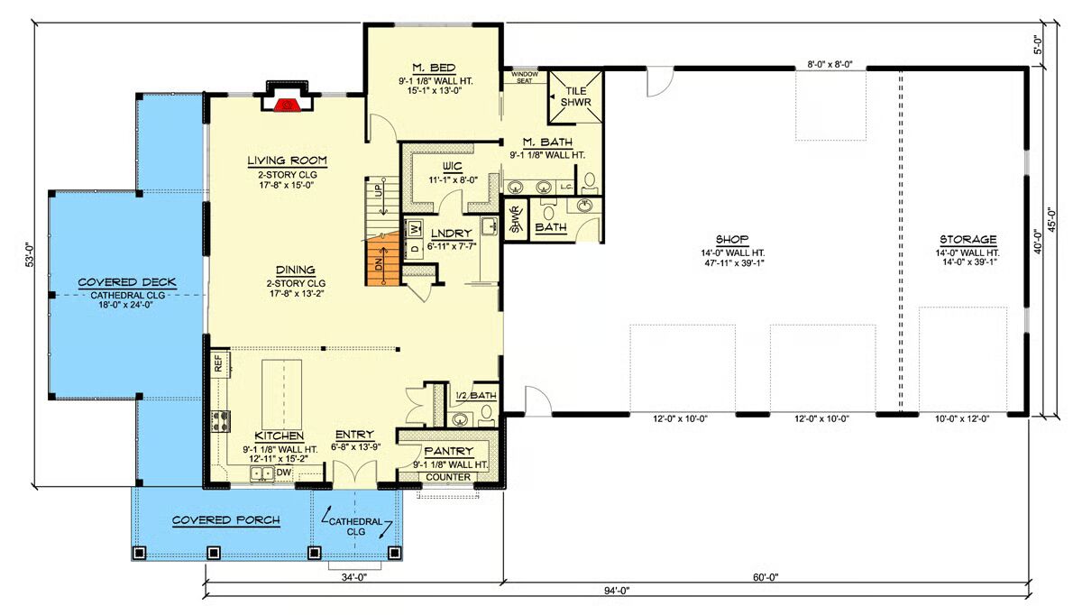
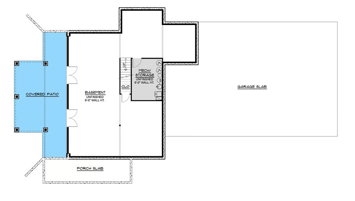
Designed for a side-sloping lot, this barndominium-style home (with 2×6 exterior walls) maximizes views and outdoor living with a walkout basement, spacious patio, and elevated deck along the left side of the home.
Inside, the heart of the home showcases a dramatic two-story ceiling over the open living and dining areas. The kitchen is generously sized for effortless entertaining, while a nearby den offers a private retreat for work or relaxation.
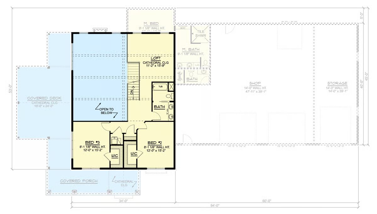
The main-level primary suite features a spa-inspired 5-fixture bath and a walk-in closet with direct access to the laundry room for added convenience. Upstairs, two secondary bedrooms mirror each other in design and share access to a central loft — an ideal hangout or play space.
A standout feature of this plan is the massive 2,245 sq. ft. garage, providing ample room for a workshop, storage, or larger vehicles, complete with an oversized overhead door.
Finished with corrugated metal siding, this home blends rustic barndominium charm with practical modern living.
=> Looking for a custom Barndominium floor plan? Click here to fill out our form, a member of our team will be in touch.
