Specifications
- Area: 1,800 sq. ft.
- Bedrooms: 3
- Bathrooms: 3
- Stories: 1
- Garages: 4
Welcome to the gallery of photos for the 1800 Square Foot Barndominium-Style House with 2404 Square Foot Garage Shop. The floor plans are shown below:









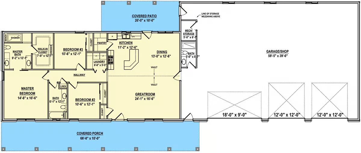
This 1,800-square-foot Barndominium-style home combines rustic charm with modern functionality, featuring board and batten siding, a standing seam metal roof, and 10-foot-deep covered porches on both the front and back—perfect for relaxing or entertaining outdoors.
Designed with conventional 2×6 wood framing, the thoughtful layout offers three bedrooms conveniently clustered together on one side, along with a laundry room easily accessible from all sleeping areas.
The heart of the home is a vaulted great room that flows seamlessly into the open kitchen and dining area. A large kitchen island provides casual seating and ample prep space, ideal for gatherings.
Car enthusiasts and hobbyists will love the RV-friendly garage shop, which includes a dedicated mechanical room and a full bath for added convenience. The two-car bay features an 18′ x 9′ overhead door, while the RV bays offer 12′ x 12′ doors, accommodating large vehicles with ease.
A perfect blend of country style and modern practicality, this barndominium delivers both comfort and versatility.
=> Looking for a custom Barndominium floor plan? Click here to fill out our form, a member of our team will be in touch.
