Specifications
- Area: 2,487 sq. ft.
- Bedrooms: 3
- Bathrooms: 2.5
- Stories: 1
- Garages: 2
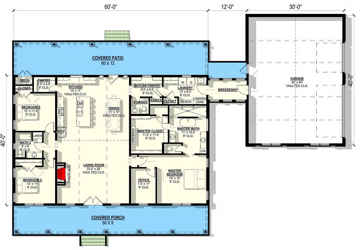
Welcome to the gallery of photos for the Modern Farmhouse Barndominium House with Split Bedrooms and Detached Garage. The floor plan is shown below:









Embrace modern farmhouse charm in this striking 2,487 sq. ft. Barndominium-style home, featuring 3 bedrooms, 2.5 bathrooms, and an impressive 1,197 sq. ft. detached 2-car garage wrapped in classic board-and-batten and vertical siding.
A sweeping 540 sq. ft. covered front porch welcomes you with abundant space for morning coffee or evening relaxation.
Step inside to discover a thoughtfully designed layout that opens immediately into the heart of the home, where a conveniently placed home office offers an ideal space for remote work or study.
The main living areas—comprising the kitchen, dining room, and living room—are united beneath dramatic vaulted ceilings, enhancing the airy and open feel perfect for gatherings of any size.
Everyday function is elevated by a well-appointed mudroom and a spacious butler’s walk-in pantry, ensuring both organization and ease.
The first-floor primary suite provides a peaceful retreat, privately situated away from the secondary bedrooms in a desirable split-bedroom design that prioritizes comfort and tranquility.
A standout feature of the property, the detached 1,197 sq. ft. 2-car garage, boasts a vibrant red barn aesthetic that complements the home’s farmhouse style while offering exceptional versatility for vehicles, a workshop, hobbies, or additional storage.
Outdoor living is equally well-appointed, with the expansive front porch and a generous 620 sq. ft. covered rear patio, creating ideal spaces for entertaining, dining, or simply enjoying the surrounding scenery.
This Modern Farmhouse Barndominium blends rustic appeal with contemporary convenience, delivering a warm, functional, and beautifully cohesive home design.
=> Looking for a custom Barndominium floor plan? Click here to fill out our form, a member of our team will be in touch.
