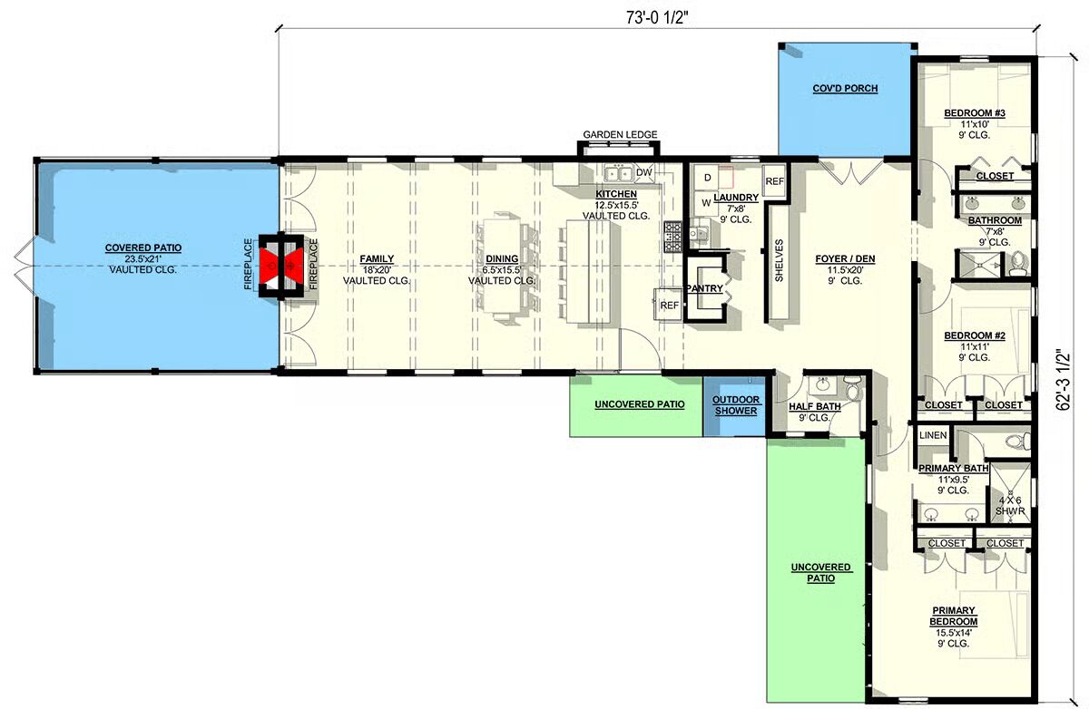
Specifications
- Area: 2,233 sq. ft.
- Bedrooms: 3
- Bathrooms: 2.5
- Stories: 1
Welcome to the gallery of photos for the Modern Barndominium House with Split Beds, Vaulted Ceilings, and Outdoor Fireplace. The floor plan is shown below:








Experience refined modern rustic living in this striking 2,233 sq. ft. Barndominium-style home, offering 3 bedrooms, 2 full bathrooms, and a half bath. Defined by clean lines and a commanding presence, this design blends contemporary functionality with timeless charm.
A welcoming 143 sq. ft. front porch leads you inside to a beautifully arranged open-concept floor plan. Just off the entry, a private den offers an ideal space for a home office, library, or quiet retreat.
The main living area serves as the heart of the home, where the family room, kitchen, and dining area unite under impressive vaulted ceilings. A well-appointed butler’s walk-in pantry and a cozy breakfast nook enhance both daily convenience and entertaining potential.
The luxurious first-floor master suite creates a peaceful escape, thoughtfully positioned away from the secondary bedrooms to ensure maximum privacy and comfort.
Outdoor living shines with a generous 489 sq. ft. covered patio featuring a screened-in section visible from the exterior, perfect for year-round enjoyment.
A 361 sq. ft. uncovered patio extends the relaxation space, complete with an outdoor fireplace that sets the stage for cozy gatherings under the stars.
This exceptional barndominium plan delivers a harmonious balance of style, comfort, and indoor–outdoor living.
=> Looking for a custom Barndominium floor plan? Click here to fill out our form, a member of our team will be in touch.
