Specifications
- Area: 3,473 sq. ft.
- Bedrooms: 3-4
- Bathrooms: 2.5+
- Stories: 2
- Garages: 6
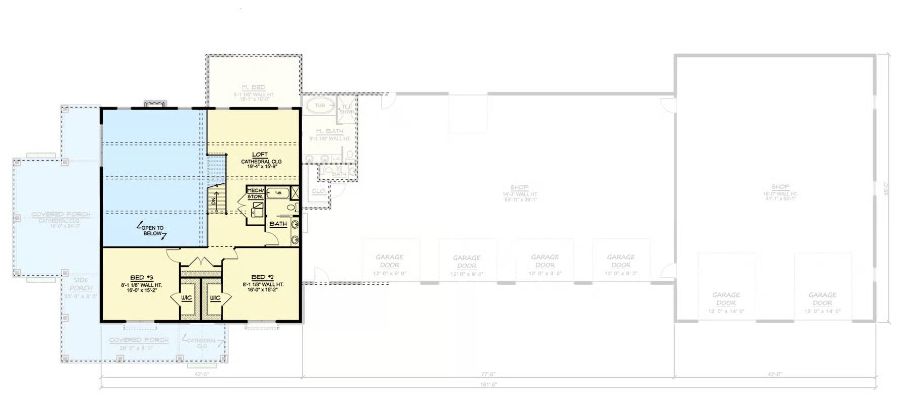
Welcome to the gallery of photos for the Barndominium with Oversized 6-Car Garage and Workshop – 3,473 Sq Ft. The floor plans are shown below:








This impressive barndominium-style home delivers 3,473 sq. ft. of heated living space, offering 3 to 4 bedrooms, 2 full baths, and 2 half baths, with the option to expand into a finished lower level for even more versatility.
A highlight of this plan is the 5,286 sq. ft. oversized 6-car garage and workshop, providing unmatched space for vehicles, hobbies, or business needs.
Whether you need room for an RV, boats, equipment, or a large-scale workshop, this layout is built to accommodate.
Designed for both style and functionality, this home seamlessly combines expansive indoor living with practical work and storage solutions—perfect for families, hobbyists, or anyone seeking the ultimate work/life balance.
=> Looking for a custom Barndominium floor plan? Click here to fill out our form, a member of our team will be in touch.
