Specifications
- Area: 1,614 sq. ft.
- Bedrooms: 2
- Bathrooms: 2
- Stories: 1
- Garages: 2
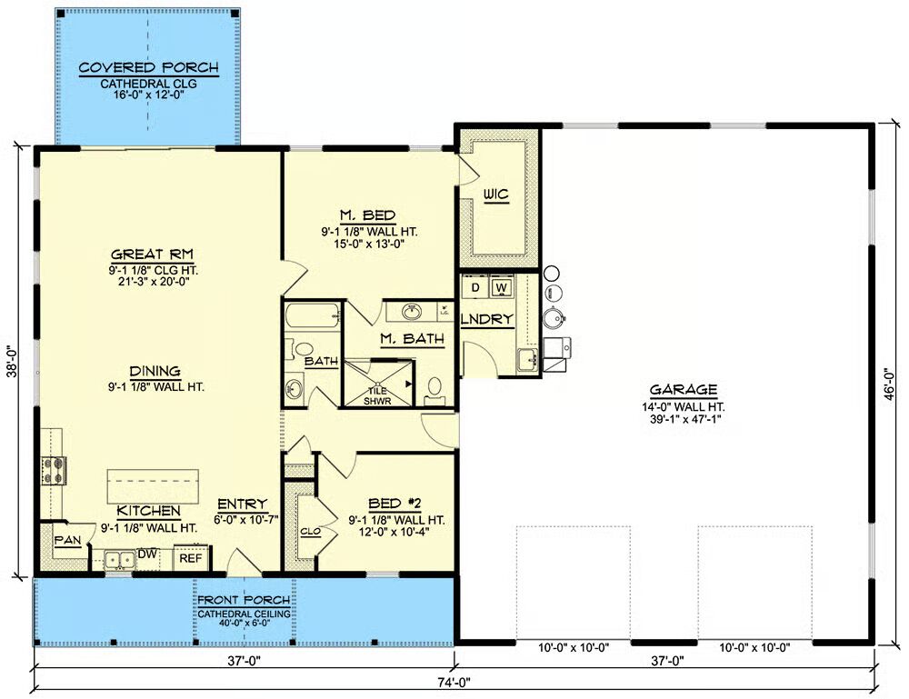
Welcome to the gallery of photos for the Barndominium Style House with Man Cave. The floor plan is shown below:





Enjoy the perfect blend of work and home life in this barndominium-style design, featuring 1,519 sq. ft. of garage space with dual 10′ by 10′ overhead doors—ideal for vehicles, storage, or a workshop.
A welcoming 6-foot covered front porch leads into the open-concept living area, where the kitchen flows seamlessly into the dining room and great room, creating an inviting space for everyday living.
Large glass doors extend the living space to the rear covered porch, perfect for outdoor relaxation.
The master suite offers a private retreat with a walk-in closet and tiled shower, while the second bedroom also includes a walk-in closet and easy access to a full bath.
Finished in corrugated metal siding, this home combines practicality, style, and durability in one efficient package.
=> Looking for a custom Barndominium floor plan? Click here to fill out our form, a member of our team will be in touch.
