Specifications
- Area: 3,206 sq. ft.
- Units: 2
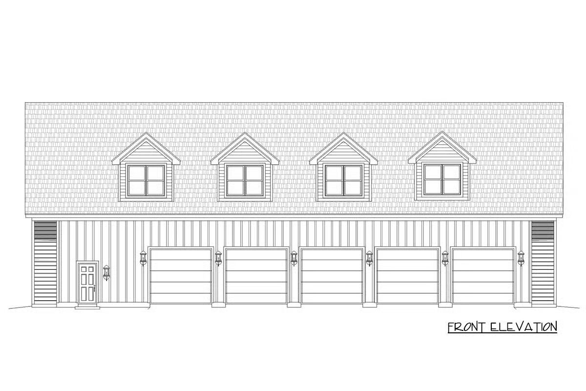
Welcome to the gallery of photos for the Barndominium Duplex with 5 Garage Bays and a Ground Level Office. The floor plans are shown below:







This spacious two-family barndominium offers versatility and comfort, featuring matching 3-bedroom, 2-bathroom units set above a ground level with 5 garage bays and a dedicated home office.
Perfect for multigenerational living, rental income, or shared ownership, this design blends practicality with modern farmhouse appeal.
Upstairs, each unit showcases an open-concept layout where the living room, kitchen, and dining area flow together seamlessly and extend onto a private deck for outdoor living.
The U-shaped kitchen is both stylish and functional, surrounding a central prep island with counter-height seating.
The master suite provides a private retreat, complete with a walk-in closet and spa-inspired en suite featuring a wet room. Two additional bedrooms share a full hall bath, offering space and comfort for family or guests.
=> Looking for a custom Barndominium floor plan? Click here to fill out our form, a member of our team will be in touch.
