Specifications
- Area: 3,479 sq. ft.
- Bedrooms: 5
- Bathrooms: 3.5
- Stories: 1
- Garages: 4
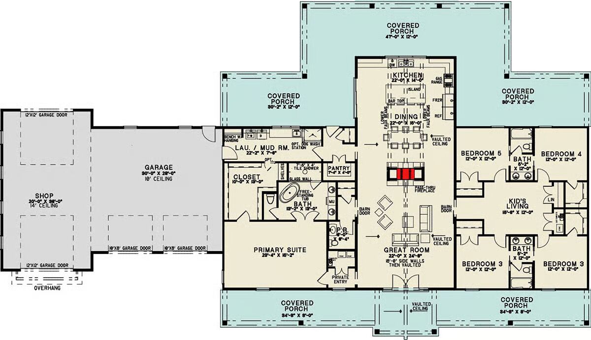
Welcome to the gallery of photos for the Modern Barndominium House with Rear Wrap Around Porch – 3479 Sq Ft. The floor plan is shown below:

Buy This Plan







This stunning 5-bedroom modern farmhouse blends barndominium-inspired design with contemporary details, creating a fresh, sleek exterior warmed by a massive covered front porch with vaulted entry—the perfect balance of charm and modern appeal.
Inside, the open-concept layout offers sightlines from the great room straight through to the kitchen, with space in between for a dining table to suit your lifestyle. Barn doors add rustic character throughout, including in the great room and master suite.
The master suite is a private retreat, complete with a cozy seating area ideal for a vanity or home office desk. The luxurious en suite bath features dual vanities, a tiled shower, a whirlpool tub, and two walk-in closets.
Across the home, four additional bedrooms are arranged for privacy and paired with Jack-and-Jill bathrooms, perfect for family living. These bedrooms share a versatile loft-style living area, ideal for a playroom, lounge, or game space.
At the rear, a large mudroom and laundry room provide practical convenience with a direct, shotgun-style entry.
The home also includes a standard 2-car garage plus an oversized drive-through RV garage, complete with 12′ x 12′ overhead doors (front and rear) and a soaring 14′ ceiling, making it the ultimate space for storage, a workshop, or hobby vehicles.
=> Looking for a custom Barndominium floor plan? Click here to fill out our form, a member of our team will be in touch.
